113 & 114 - 600 Dixon Road, Toronto, Ontario M9W 1J1

Listed for:
$978,000
0 beds
0 baths
Listed 152 days ago
Offices for rent: 113 & 114 - 600 Dixon Road, Toronto, Ontario M9W 1J1

View all 16 photos

Learn more about this property
Listing provided by:
RE/MAX ESCARPMENT REALTY INC.
MLS® number:
W12309058
Agent:
Maha Masri
*Indicates required field
Name is required
Email is required
Please enter a valid phone number (e.g., 416-111-1111).

About

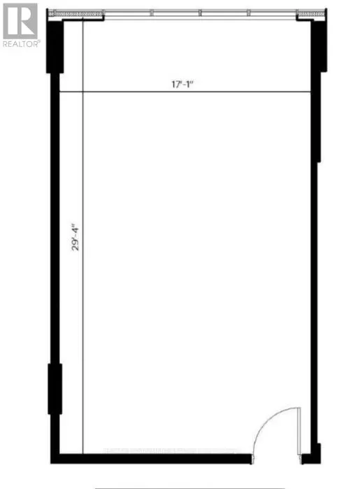
Cross Streets: Martin Grove Rd & Dixon Rd. ** Directions: West on Eglinton, North on Kipling then West on Dixon. Assignment Sale at Regal Plaza! - CUSTOMIZE YOUR DREAM OFFICE at the Main Floor. Expected Closing: end of August 2025. Shell Condition - Customize it to fit your business needs & branding. Prime Location - 5 mins from Pearson Airport, near major highways. Top-Tier Business Hub - Ideal for professionals, startups, medical offices & investors. High Growth Potential - Invest early in a premier business address. Luxury Amenities - On-site retail, restaurants, a multi-use atrium & Suites.one parking spot included. Unit 113 (661sqft) & 114 (660sqft). The "REGAL PLAZA" is minutes away from Toronto Pearson Airport; Toronto Congress Centre and Major Highways: 401, 409 & 427. It is connected to a franchise hotel on the North Side of the Property and is at the eastern entrance of what is already Canada's Second Largest Employment Zone. (id:27476)

Property Highlights

MLS® Number
W12309058
Type
Office
Community Name
Willowridge-Martingrove-Richview
Land Size
Unit=46.9 x 26.7 FT
Parking Space Total
1

Building

Building Type
Offices
Square Footage
1321 sqft
Amenities
Highway
Fireplace Present
No
Basement Type
Basement Features
Building Heating Type
Other
Heating Fuel
Building Cooling Type
Fully air conditioned

Utilities

Water
Municipal water
Utility Sewer
Sanitary sewer

Location

Street Spotlight - For sale