705 - 855 Kennedy Road, Toronto, Ontario M1K 2E3

Listed for:
$450,000
2 beds
1 baths
Listed 98 days ago
Apartment for rent: 705 - 855 Kennedy Road, Toronto, Ontario M1K 2E3

View all 49 photos

Learn more about this property
Listing provided by:
ROYAL LEPAGE ASSOCIATES REALTY
MLS® number:
E12339578
Agent:
Usha Sivasundararajah
*Indicates required field
Name is required
Email is required
Please enter a valid phone number (e.g., 416-111-1111).

About

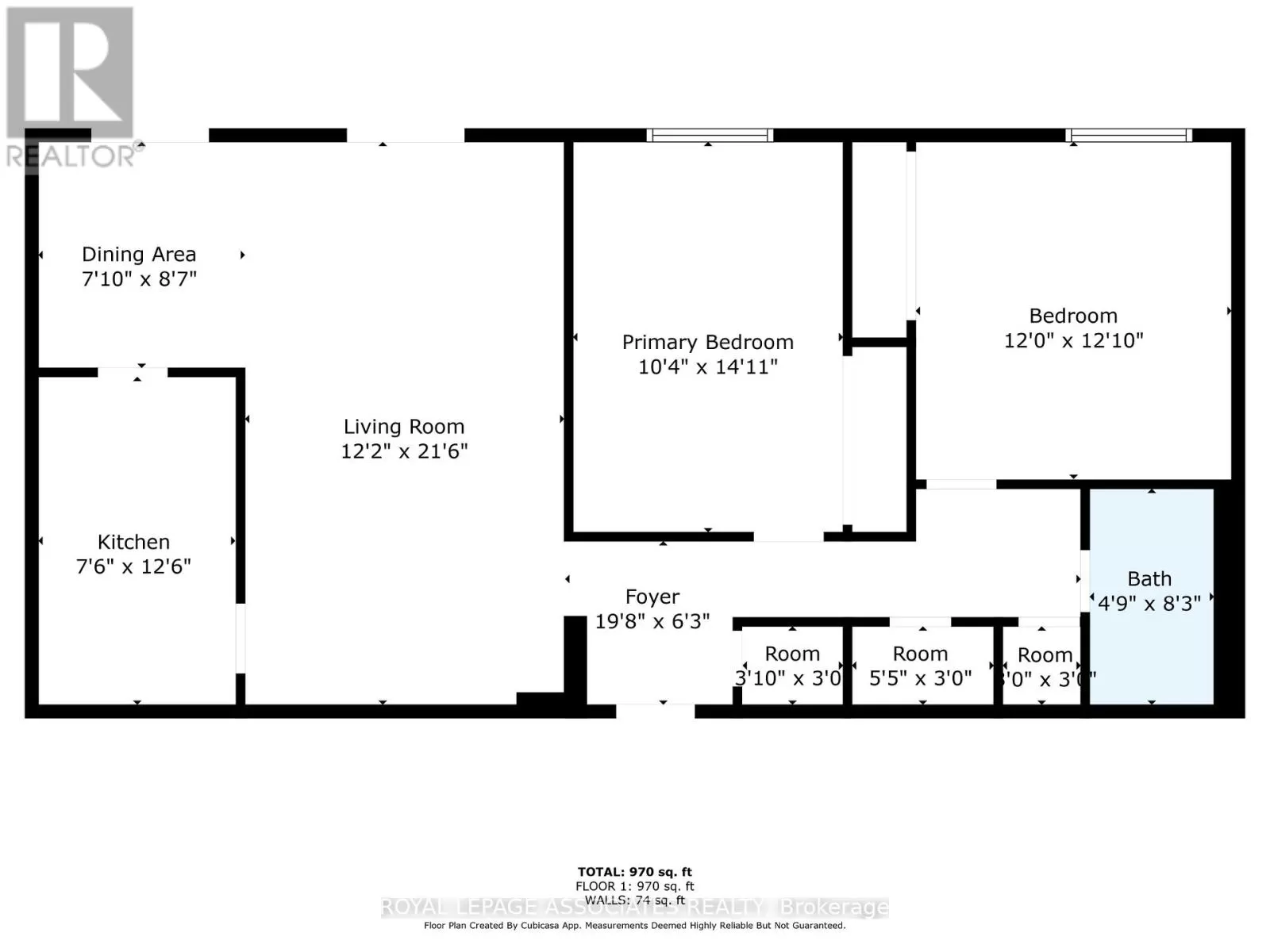
Kennedy Rd. & Lawrence Ave Welcome to this bright and generously proportioned 2-bedroom suite in a well-managed Scarborough building. Offering an impressive layout with approximately 1,000+ sq. ft. of comfortable living space, this home is perfect for those seeking both functionality and style.The two oversized bedrooms are designed for ultimate comfort, each featuring large windows and ample closet space, ensuring storage is never an issue. The open living and dining areas flow seamlessly, creating an inviting space for entertaining or relaxing. Enjoy a well-appointed, updated kitchen for those who love to cook, as well as additional closets throughout the suite for exceptional organizational space throughout. This home also includes a dedicated garage parking space. Conveniently located near TTC transit, shopping, schools, and parks, this property offers outstanding value for its large size and location. A fantastic opportunity for first-time buyers, down-sizers, or investors looking for a spacious home in the city. (id:27476)

Property Highlights

MLS® Number
E12339578
Type
Single Family
Community Name
Ionview
Maintenance Fee
675.87
Ownership Type
Condominium/Strata
Parking Space Total
1

Building

Building Type
Apartment
Square Footage
900 - 999 sqft
Bathrooms Total
1
Bedrooms Above Ground
2
Bedrooms Total
2
Exterior Finish
Brick
Fireplace Present
Yes
Basement Type
None
Basement Features
Building Heating Type
Baseboard heaters
Heating Fuel
Electric
Building Cooling Type
None

Location

Street Spotlight - For sale