107 Otter Crescent, Toronto, Ontario M5N 2W9

Listed for:
$2,690,000
5 beds
4 baths
Listed 52 days ago
House for rent: 107 Otter Crescent, Toronto, Ontario M5N 2W9

View all 50 photos

Learn more about this property
Listing provided by:
RIGHT AT HOME REALTY
MLS® number:
C12351753
Agent:
Inna Pozin
*Indicates required field
Name is required
Email is required
Please enter a valid phone number (e.g., 416-111-1111).

About

Cross Streets: Lawrence Ave W/Avenue Rd. ** Directions: Lawrence Ave W/Avenue Rd. One-of-a-kind, thoughtfully crafted home in the prestigious Bathurst/Avenue Rd area. This unique property features 4+1 bedrooms, an oversized loft, and 4 bathrooms. The updated kitchen comes with two fridges and a heated granite countertop. The modern basement apartment with a separate entrance, finished in 2022, offers flexibility as an in-law suite, Airbnb rental, or guest unit. Approximately 50% of the home is a brand-new build, showcasing high-end finishes and upgrades, including water radiant heated flooring and high-performance insulating materials. The ground-level great room, currently used as an art studio, can be converted back into a two-car garage. Enjoy beautifully landscaped grounds with mature trees, a gazebo, and even a charming treehouse. The property has potential for office use (previously 361 Lawrence Ave W, Toronto). The lot size is effectively larger due to the inclusion of adjacent municipal land. Too many features to list, please refer to the detailed floor plans attached. Survey and building permits are available upon request. The property is in the district of the city's top-ranked schools: John Ross Robertson Junior Public School, Glenview Senior Public School, Lawrence Park Collegiate Institute, and the prestigious private girls' school, Havergal College. Situated in a family-friendly neighborhood just a short distance from Avenue Road, with easy access to parks, shopping, restaurants, three subway stations, main transportation hubs, and public transit. This is a must-see masterpiece with unmatched character and artistic flair! (id:27476)

Property Highlights

MLS® Number
C12351753
Type
Single Family
Community Name
Bedford Park-Nortown
Ownership Type
Freehold
Land Size
33.1 x 100 FT
Parking Space Total
4

Building

Building Type
House
Storeys
2.50
Square Footage
2500 - 3000 sqft
Bathrooms Total
4
Bedrooms Above Ground
4
Bedrooms Total
5
Amenities
Fireplace(s), Separate Heating Controls Hospital, Park, Place of Worship, Public Transit, Schools
Exterior Finish
Brick, Stucco
Fireplace Present
Yes
Basement Type
N/A, N/A
Basement Features
Apartment in basement, Separate entrance
Building Heating Type
Other
Heating Fuel
Natural gas
Building Cooling Type
Central air conditioning, Ventilation system

Utilities

Water
Municipal water
Utility Sewer
Sanitary sewer

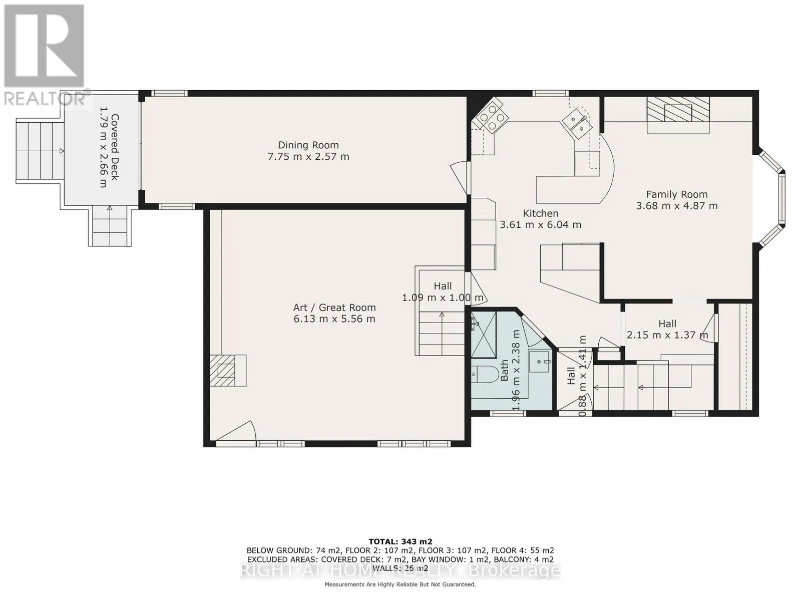
Room Layout

Laundry room
Second level
1.7 m x 2.02 m
Primary Bedroom
Second level
6.14 m x 5.61 m
Bedroom 2
Second level
4.1 m x 3.07 m
Bedroom 3
Second level
3.27 m x 2.51 m
Bedroom 4
Second level
2.63 m x 3.63 m
Living room
Basement
3.41 m x 5.02 m
Dining room
Basement
3.41 m x 5.02 m
Bedroom
Basement
2.71 m x 3.54 m
Laundry room
Basement
1.8 m x 1.76 m
Kitchen
Basement
3.41 m x 2.59 m
Kitchen
Main level
3.61 m x 6.04 m
Dining room
Main level
7.75 m x 2.57 m
Family room
Main level
3.68 m x 4.87 m
Loft
Upper Level
6.14 m x 8.28 m
Great room
Ground level
6.13 m x 5.56 m

Location