432 Queen Street E, Toronto, Ontario M5A 1T4

Listed for:
$4,349,000
6 beds
6 baths
Listed 151 days ago
Other for rent: 432 Queen Street E, Toronto, Ontario M5A 1T4

View all 50 photos

About

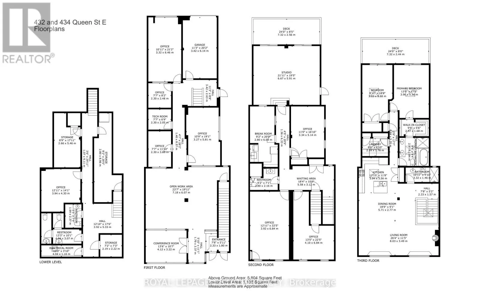
Queen & Sackville Welcome to your ideal live/work property in downtown Toronto. Privacy and luxury has been thoughtfully renovated into this bright, expansive live/work space in the perfect location with easy access to subways and highways. HIGHLIGHTS:Private garage, expansive great room, bright yoga studio, stylish wood-burning fireplace, 6 skylights, Jacuzzi tub, and glass-enclosed showers. Bamboo and granite floors throughout.Customizable for retail, office, or residential use. With over 7,500 square feet of usable space you can occupy the space you need and rent the rest. LOCATION: Easy access to DVP/Gardiner, streetcar stop, and future Ontario Line subway. MAIN FLOOR: Open retail/office area, large windows, 4 private offices, tech room, private garage, and mudroom. 2ND FLOOR: bright high-ceiling studio with two walk-out doors to a huge deck perfect for yoga, photography, a family room, or home theatre. Kitchenette, washroom, and 3 offices. PENTHOUSE: A stunning, light-filled space with south-facing windows, 6 skylights, and a 12 ft ceiling. The great room has a European wood-burning fireplace, and a designer kitchen boasting ample storage, a granite island, induction range, and stainless-steel appliances. The primary ensuite includes a jetted tub, oversized glass shower, and skylight. Two bedrooms feature skylights and access to a spacious deck. OUTSIDE: Built-in gas BBQ line, heated gutters, and new roof shingles (2024). BASEMENT: Office, 3 storage rooms, utility room, and 3 washrooms. (id:27476)

Property Highlights

MLS® Number
C12382455
Type
Single Family
Community Name
Regent Park
Land Size
26.8 x 81.4 FT
Parking Space Total
1

Building

Building Type
Other
Storeys
3.00
Square Footage
5000 - 100000 sqft
Bathrooms Total
6
Bedrooms Above Ground
6
Bedrooms Total
6
Amenities
Fireplace(s)
Exterior Finish
Stone
Fireplace Present
Yes
Basement Type
Full (Finished)
Basement Features
Building Heating Type
Forced air
Heating Fuel
Natural gas
Building Cooling Type
Central air conditioning

Utilities

Water
Municipal water

Room Layout

Bedroom 3
Second level
4.09 m x 6.83 m
Bedroom 4
Second level
3.92 m x 6.84 m
Bedroom 5
Second level
3.34 m x 5.14 m
Kitchen
Second level
2.8 m x 6.09 m
Exercise room
Second level
6.67 m x 5.91 m
Bedroom
Third level
3.03 m x 5.68 m
Bedroom 2
Third level
3.96 m x 5.34 m
Great room
Third level
8.03 m x 3.49 m
Kitchen
Third level
3.94 m x 3.56 m
Office
Ground level
7.18 m x 6.07 m
Office
Ground level
3.27 m x 5.81 m
Office
Ground level
4.12 m x 3.21 m

Location

Learn more about this property
Listing provided by:
ROYAL LEPAGE ESTATE REALTY
MLS® number:
C12382455
Agent:
Matt Wood
*Indicates required field
Name is required
Email is required
Please enter a valid phone number (e.g., 416-111-1111).

Street Spotlight - For sale