Basement - 215 Hamilton Street, Toronto, Ontario M4M 2E3

Listed for:
$1,700
1 beds
1 baths
Listed 76 days ago
House for rent: Basement - 215 Hamilton Street, Toronto, Ontario M4M 2E3

View all 22 photos

Learn more about this property
Listing provided by:
ICI SOURCE REAL ASSET SERVICES INC.
MLS® number:
E12383021
Agent:
James Tasca
*Indicates required field
Name is required
Email is required
Please enter a valid phone number (e.g., 416-111-1111).

About

Cross Streets: Gerard/Broadview. ** Directions: Transportation streetcars (506 Carlton, 504 King, 505 Dundas) 100 meters away (501 Queen) 2 blocksaway and Broadview Station (subway) a 10-minute walk. This rarely available, fully renovated 1-bedroom, 1-bath basement apartment (590 sq. ft.) offers modern finishes and everyday convenience on one of Leslieville/Riversides best tree-lined streets. Featuring new wood laminate floors, fresh paint, and in-suite laundry with a European washer/dryer combo, the unit is designed for comfort. The modern kitchen includes a new refrigerator, dishwasher, stove, and ample cabinetry. Bright and airy with abundant natural light, the apartment also has a private entrance with secondary exit and a front nook perfect for a home office. (The last three photos show the current tenants setup.)Available: October 15, 2025The bathroom has been newly remodelled with a 3-piece bath and glass shower door, and LED pot lighting throughout adds a modern touch. Unbeatable Location : Directly across from Riverdale Park with walking and biking trails at your doorstep. Walking Score: 95 | Biking Score: 98. Steps from Queen Street East, the Danforth, Broadview Hotel, Distillery District, restaurants, cafés, boutique groceries, Loblaws, and LCBO. Walking Score: 95 | Biking Score: 98, Streetcars: 506/504/505 within 100m; 501 Queen 2 blocks away. Broadview Station: 10-minute walk, Street permit parking + nearby Green P available Non-smoking unit No pets ,Tenant responsible for garbage/recycling and clearing entrance stairs *For Additional Property Details Click The Brochure Icon Below* (id:27476)

Property Highlights

MLS® Number
E12383021
Type
Single Family
Community Name
South Riverdale
Ownership Type
Freehold

Building

Building Type
House
Storeys
2.00
Square Footage
0 - 699 sqft
Bathrooms Total
1
Bedrooms Above Ground
1
Bedrooms Total
1
Exterior Finish
Brick
Fireplace Present
No
Basement Type
N/A
Basement Features
Apartment in basement
Building Heating Type
Forced air
Heating Fuel
Natural gas
Building Cooling Type
Central air conditioning

Utilities

Water
Municipal water
Utility Sewer
Sanitary sewer

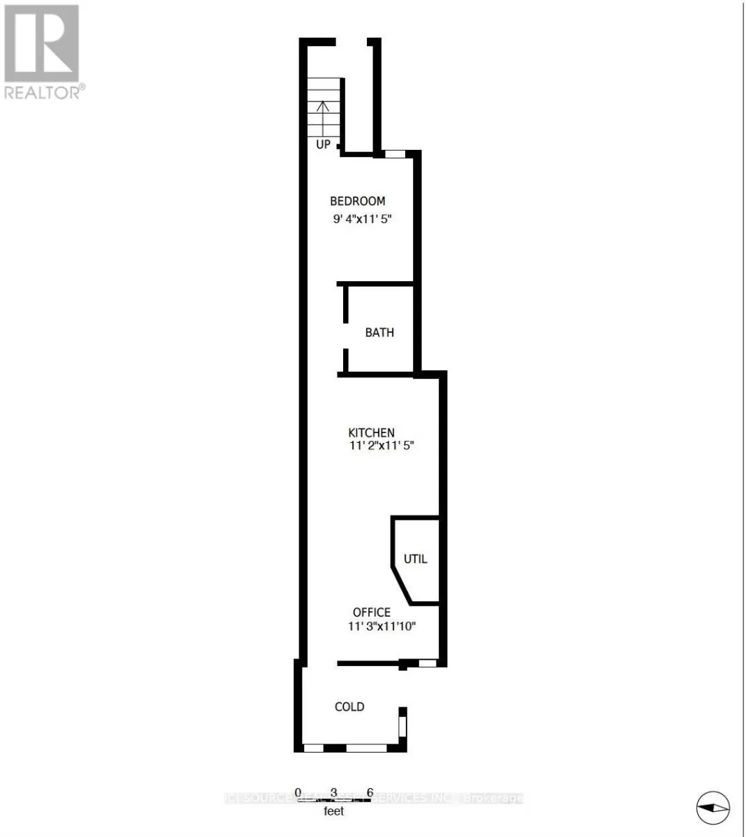
Room Layout

Bedroom
Basement
2.84 m x 3.48 m
Kitchen
Basement
3.4 m x 3.48 m
Living room
Basement
3.43 m x 3.61 m
Foyer
Basement
3 m x 2.79 m

Location