6 Tepee Court, Toronto, Ontario M2J 3A9

Listed for:
$1,495,000
6 beds
4 baths
Listed 32 days ago
House for rent: 6 Tepee Court, Toronto, Ontario M2J 3A9

View all 46 photos

Learn more about this property
Listing provided by:
ROYAL LEPAGE TERREQUITY REALTY
MLS® number:
C12403177
Agent:
Arthur Labbancz
*Indicates required field
Name is required
Email is required
Please enter a valid phone number (e.g., 416-111-1111).

About

Don Mills and Finch Welcome to Don Valley Village! An exceptional opportunity in one of North Yorks most desirable neighbourhoods ideal for families and smart investors alike. This bright and expansive home offers 5+1 bedrooms on a generous lot, complete with a private backyard oasis thats perfect for gatherings, play, and quiet retreat . Surrounded by mature trees that create a natural canopy, this property is filled with endless possibilities whether for a growing family, multi-generational living, or simply adding your own personal touch. With unbeatable proximity to top-rated schools, shopping plazas, parks, TTC, Highway 404/DVP, and so much more, the lifestyle here is as convenient as it is welcoming. Homes of this size and setting are a rare finddont miss your chance to make it yours! (id:27476)

Property Highlights

MLS® Number
C12403177
Type
Single Family
Community Name
Don Valley Village
Ownership Type
Freehold
Land Size
63.4 x 110 FT
Parking Space Total
6

Building

Building Type
House
Storeys
2.00
Square Footage
2000 - 2500 sqft
Bathrooms Total
4
Bedrooms Above Ground
5
Bedrooms Total
6
Amenities
Fireplace(s) Park, Place of Worship, Public Transit, Schools
Exterior Finish
Brick
Fireplace Present
Yes
Basement Type
Full (Finished)
Basement Features
Building Heating Type
Forced air
Heating Fuel
Natural gas
Building Cooling Type
Central air conditioning

Utilities

Water
Municipal water
Power
Generator
Utility Sewer
Sanitary sewer

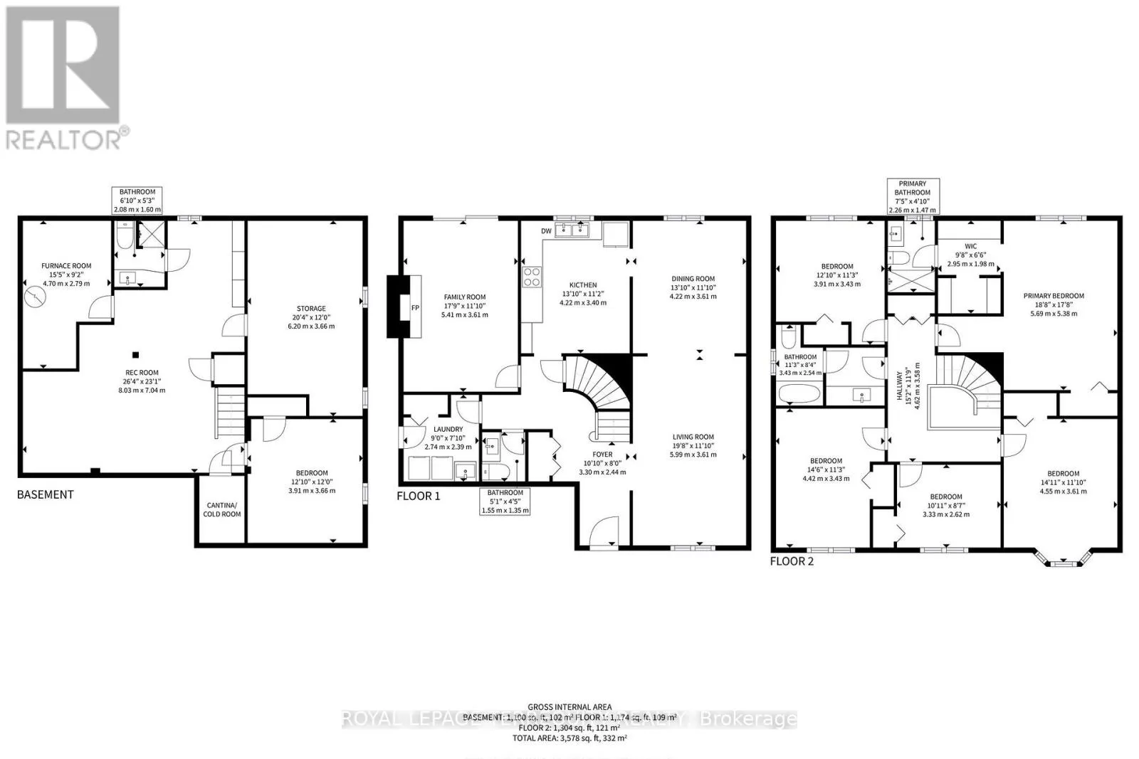
Room Layout

Bedroom 5
Second level
3.91 m x 3.91 m
Primary Bedroom
Second level
5.69 m x 5.38 m
Bedroom 2
Second level
4.55 m x 3.61 m
Bedroom 3
Second level
3.33 m x 2.62 m
Bedroom 4
Second level
4.42 m x 3.45 m
Bedroom
Basement
3.91 m x 3.66 m
Recreational, Games room
Basement
8.03 m x 7.04 m
Workshop
Basement
6.2 m x 3.66 m
Living room
Main level
5.99 m x 3.61 m
Dining room
Main level
4.22 m x 3.61 m
Kitchen
Main level
4.22 m x 3.4 m
Family room
Main level
5.41 m x 3.61 m
Laundry room
Main level
2.74 m x 2.39 m
Foyer
Main level
3.3 m x 2.44 m

Location

Community Spotlight: Homes For sale in Your Neighborhood