453 Church Street, Toronto, Ontario M4Y 2C5

Listed for:
$50
0 beds
1 baths
Listed 112 days ago
453 Church Street, Toronto, Ontario M4Y 2C5

View all 23 photos

Learn more about this property
Listing provided by:
RIGHT AT HOME REALTY
MLS® number:
C12406470
Agent:
Troy Roberts
*Indicates required field
Name is required
Email is required
Please enter a valid phone number (e.g., 416-111-1111).

About

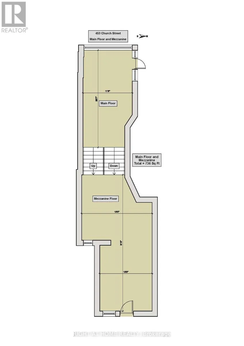
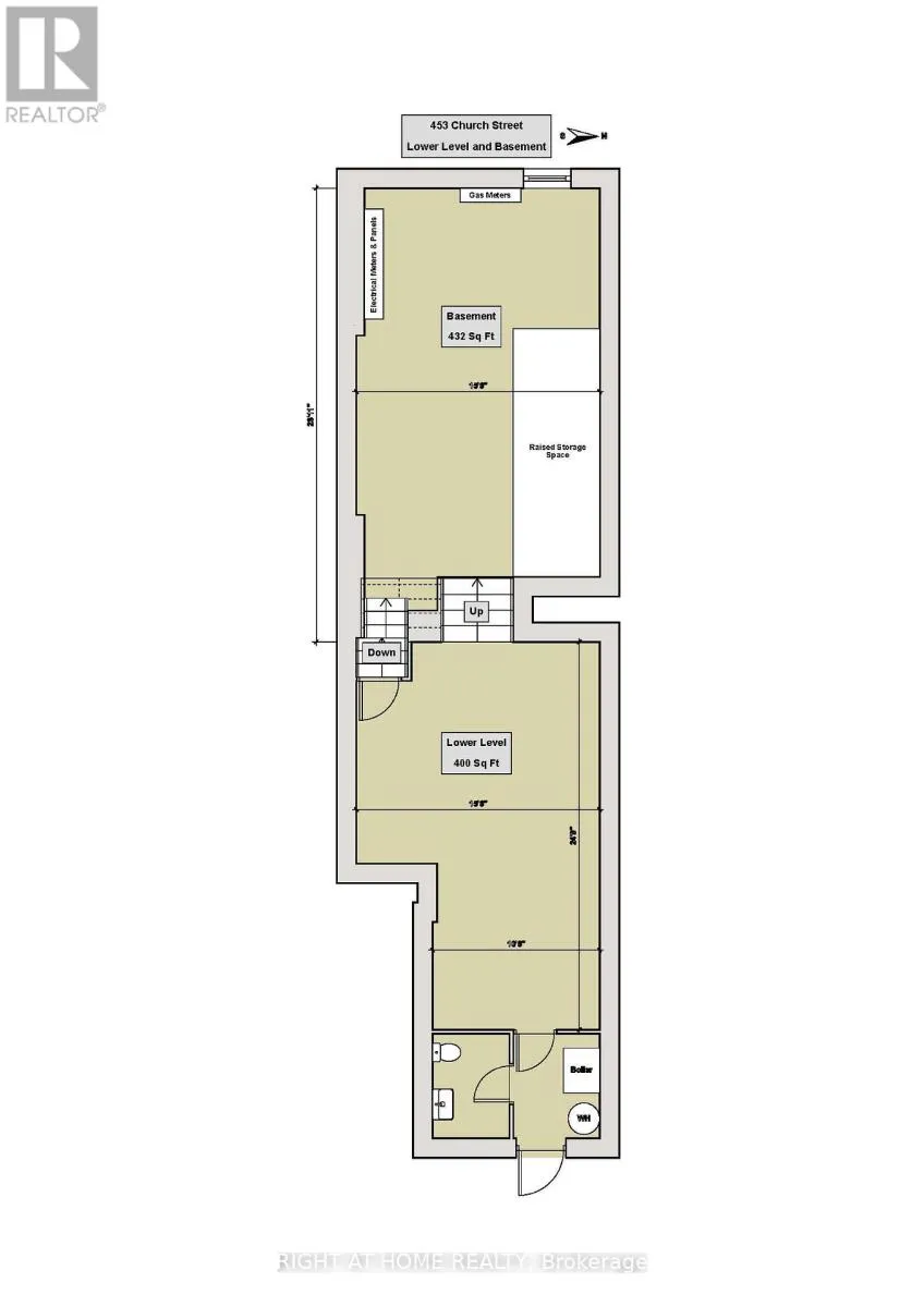
Cross Streets: Church Street and Maitland Street. ** Directions: Located on the East side of Chruch Street, north of Carleton St and south of Wellesley St East. Nestled at the vibrant intersection of Church Street and Maitland, this commercial unit offers an enticing opportunity in the very heart of Church Street Village, one of the citys most dynamic and sought-after districts. Surrounded by boutique shops, cafés, professional offices, and bustling foot traffic, this location is the embodiment of urban energy and accessibility. Its character building, high ceilings, dedicated entrance, autonomous heating and cooling, and practical basement storage make it a rare find in the neighbourhood. The thoughtfully designed split-level layout maximizes space and enhances operational flexibility. The division allows for easy separation between customer-facing areas and private staff or consultation zones. Retailers can showcase merchandise with creative displays, while professionals may utilize the levels for reception and workspace. If you're seeking a location that offers both visibility and versatility, this property deserves your careful consideration. The possibilities are as limitless as your imagination, and the neighbourhood provides the energy and support needed to help your business flourish. Arrange a viewing today and discover how this unit can become the home for your next venture. (id:27476)

Property Highlights

MLS® Number
C12406470
Type
Retail
Community Name
Church-Yonge Corridor
Land Size
17 x 89 FT

Building

Square Footage
1555 sqft
Bathrooms Total
1
Amenities
Public Transit
Fireplace Present
No
Basement Type
Basement Features
Building Heating Type
Radiator
Heating Fuel
Building Cooling Type
Partially air conditioned

Utilities

Water
Municipal water

Location