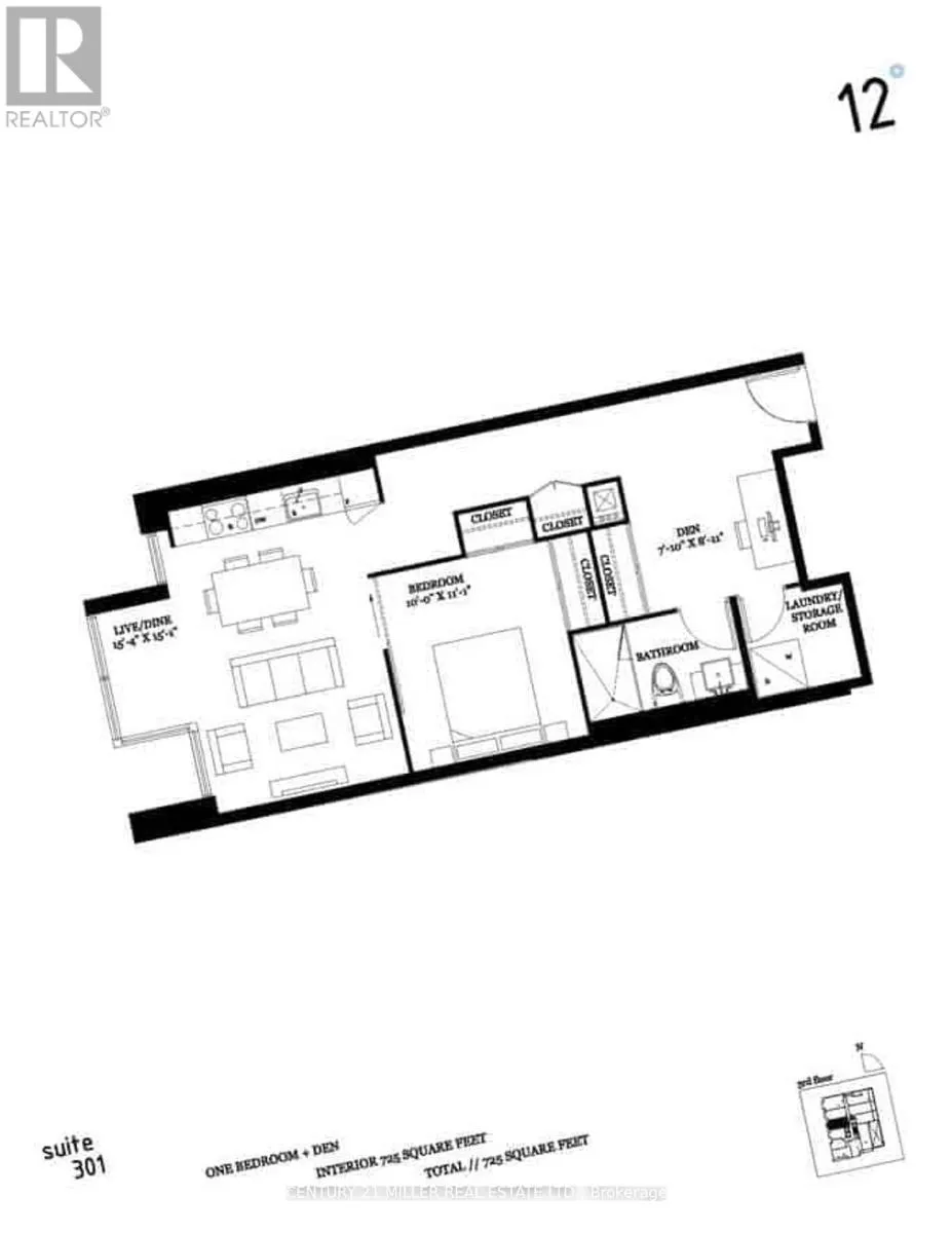
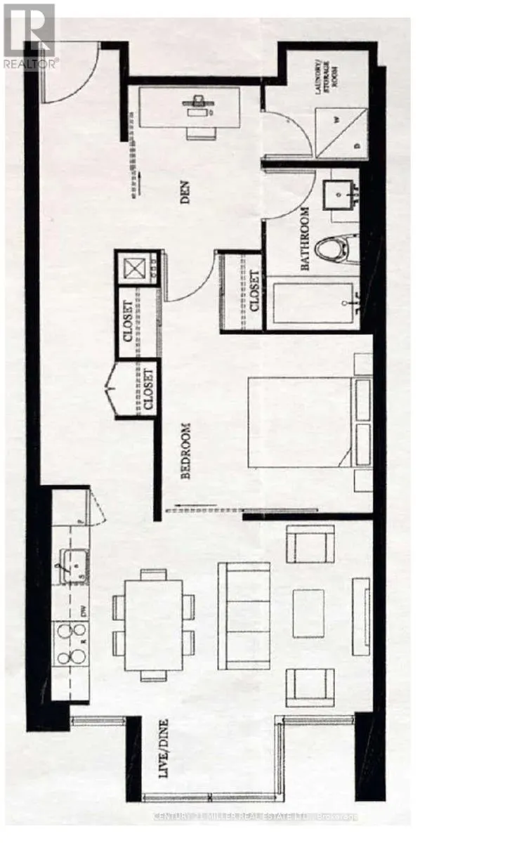
301 - 15 Beverley Street, Toronto, Ontario M5T 1X8

Listed for:
$649,000
2 beds
1 baths
Listed 61 days ago
Apartment for rent: 301 - 15 Beverley Street, Toronto, Ontario M5T 1X8

View all 50 photos

Learn more about this property
Listing provided by:
CENTURY 21 MILLER REAL ESTATE LTD.
MLS® number:
C12408169
Agent:
Jack Wong
*Indicates required field
Name is required
Email is required
Please enter a valid phone number (e.g., 416-111-1111).

About

Cross Streets: Queen St W & Beverley St. ** Directions: Queen and Peter and John Street. Award-Winning Boutique Condo at the 12 Degrees Condo With Spacious, Open Concept 1Bedroom+Den W/ Very Bright WestView. Beautiful High-End Finishes Including Engineered Wood Floor Thru-Out, Fully Integrated Full-Size Appliances, Stone Counter Top, 9'Ceilings W/ Floor To Ceiling Windows! Walking Distance To Entertainment/Financial District, Ocad, U Of T, Restaurants, Shops, Ttc/Subway &More! Walking Score 100! Close To Everything! Steps From Queen St With Full City & Tower Views.. (id:27476)

Property Highlights

MLS® Number
C12408169
Type
Single Family
Community Name
Kensington-Chinatown
Maintenance Fee
1111.06
Ownership Type
Condominium/Strata
Parking Space Total
1

Building

Building Type
Apartment
Square Footage
700 - 799 sqft
Bathrooms Total
1
Bedrooms Above Ground
1
Bedrooms Total
2
Amenities
Security/Concierge, Exercise Centre, Party Room, Storage - Locker Park, Place of Worship, Public Transit, Schools
Exterior Finish
Concrete
Fireplace Present
No
Basement Type
None
Basement Features
Building Heating Type
Forced air
Heating Fuel
Natural gas
Building Cooling Type
Central air conditioning

Location

Street Spotlight - For sale