Rear - 66 Chatham Avenue, Toronto, Ontario M4K 1J6

Listed for:
$2,125
1 beds
1 baths
Listed 33 days ago
House for rent: Rear - 66 Chatham Avenue, Toronto, Ontario M4K 1J6

View all 28 photos

Learn more about this property
Listing provided by:
BOSLEY REAL ESTATE LTD.
MLS® number:
E12435475
Agent:
Trevor Maxwell Bond
*Indicates required field
Name is required
Email is required
Please enter a valid phone number (e.g., 416-111-1111).

About

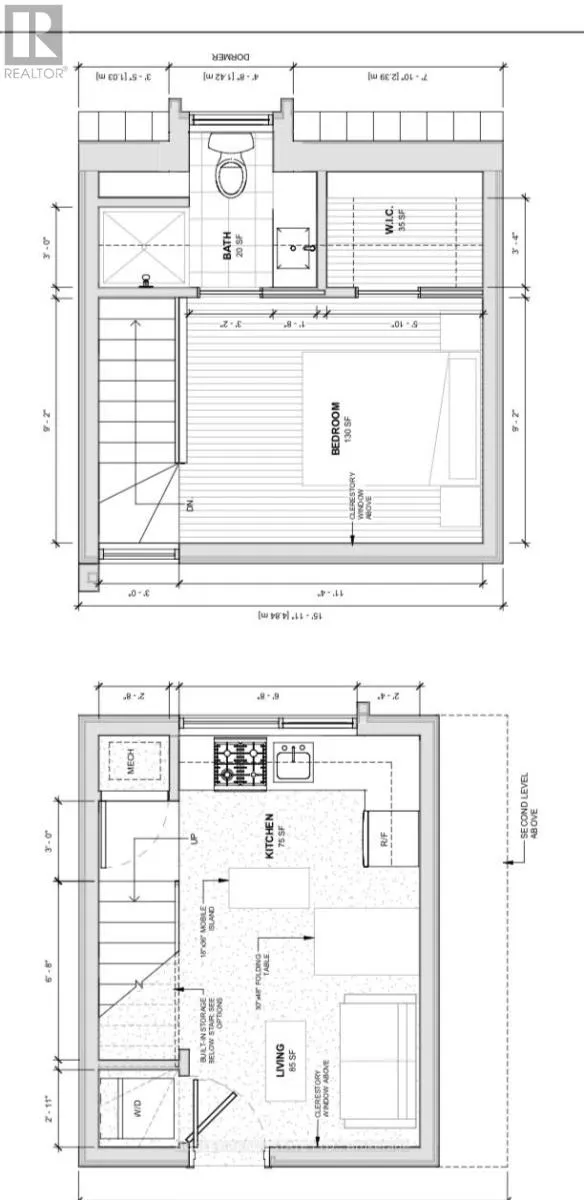
Danforth & Donlands Enjoy The Privacy And Freedom Of A Micro Detached Home In The Middle Of A Quiet Danforth Community. Tucked Behind A Private Fence And Wee Courtyard, You Have Direct Access To Your Private Gilded Oasis! A Recent Build And Fully Appointed One Bedroom Laneway Suite With High-End Finishes. 500 Sf Over Two Floors With A Private Entrance From The Laneway. Bike Parking. A Two Min Walk To Subway, In The Heart Of Greek Town, Which Connects To Entire City And Airport. Restaurants, Grocery Stores, Bakeries, Drugs Stores, All At Your Doorstep. Available Furnished Or Unfurnished. The Perfect Pied Terre For Long Term Contract Employees. Fully Stocked Kitchen, Incl. Juicer, Soda Stream, Blender, Slow Cooker. A Pantry Complete With Spices! Storage. Small Courtyard In Front Of The Building. Locked Access To Yard/Bike Storage; 34" Tv, Wifi, En Suite W/D. Bike Rental One Block (id:27476)

Property Highlights

MLS® Number
E12435475
Type
Single Family
Community Name
Blake-Jones
Ownership Type
Freehold

Building

Building Type
House
Storeys
2.00
Square Footage
0 - 699 sqft
Bathrooms Total
1
Bedrooms Above Ground
1
Bedrooms Total
1
Amenities
Separate Electricity Meters Park, Public Transit, Schools
Exterior Finish
Aluminum siding, Wood
Fireplace Present
No
Basement Type
None
Basement Features
Building Heating Type
Heat Pump, Not known
Heating Fuel
Electric
Building Cooling Type
Central air conditioning

Utilities

Water
Municipal water
Utility Sewer
Sanitary sewer

Room Layout

Primary Bedroom
Second level
3.35 m x 2.69 m
Bathroom
Second level
1.82 m x 2.46 m
Living room
Main level
2.64 m x 2.93 m
Kitchen
Main level
2.71 m x 1.99 m

Location

Community Spotlight: Homes For rent in Your Neighborhood