(lower Level) - 473 Oakwood Avenue, Toronto, Ontario M6E 2W4

Listed for:
$17
0 beds
0 baths
Listed 137 days ago
(lower Level) - 473 Oakwood Avenue, Toronto, Ontario M6E 2W4

View all 6 photos

About

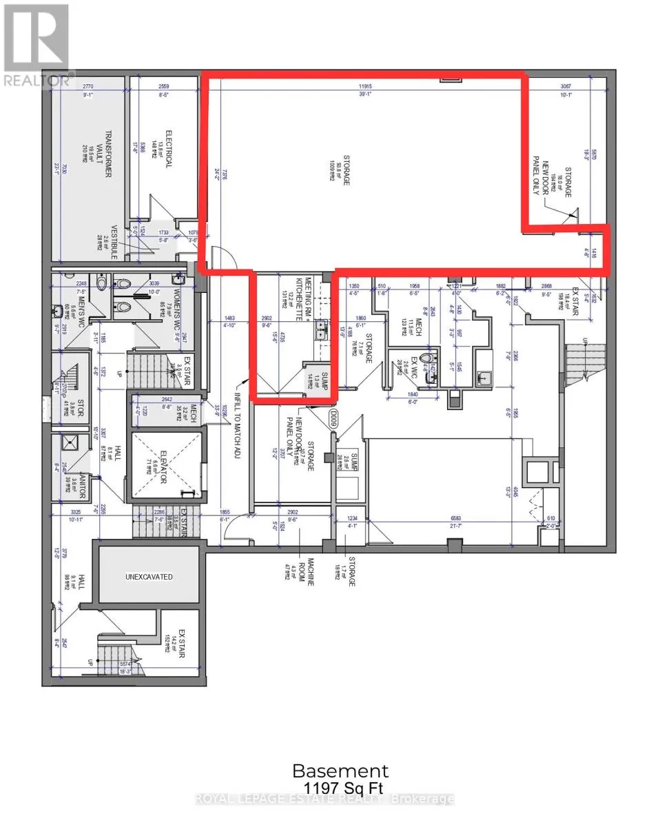
Enlington Ave W & Oakwood Ave Renovations are complete and the lower level of our new building is available for lease. A short walk south of Eglinton CrossTown, or north from St Clair streetcar, this revitalizing area is perfect for your uptown west business. Large lower level room perfect for Yoga, Dance, martial arts, Fitness, or wellness group activities, recreational children's programs or tutoring. Kitchenette may be rented along with primary room.Let your business enjoy the partnership with the landlord, other tenants and communities. Enjoy additional utility and internet charges (all included in rent). Enjoy lower GST charges and property tax charges (due to Landlord status as a church). Enjoy preferential access to the upstairs event spaces. Elevator access to accessible washrooms. (id:27476)

Property Highlights

MLS® Number
C12437629
Type
Retail
Community Name
Oakwood Village
Land Size
77.27 x 169.12 FT

Building

Square Footage
1197 sqft
Amenities
Public Transit
Fireplace Present
No
Basement Type
Basement Features
Building Heating Type
Forced air
Heating Fuel
Electric
Building Cooling Type
Fully air conditioned

Utilities

Water
Municipal water

Location

Learn more about this property
Listing provided by:
ROYAL LEPAGE ESTATE REALTY
MLS® number:
C12437629
Agent:
Matt Wood
*Indicates required field
Name is required
Email is required
Please enter a valid phone number (e.g., 416-111-1111).