4102 - 30 Inn On The Park Drive, Toronto, Ontario M3C 0P7

Listed for:
$2,450
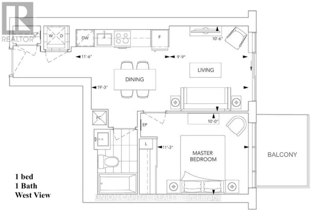
1 beds
1 baths
Listed 47 days ago
Apartment for rent: 4102 - 30 Inn On The Park Drive, Toronto, Ontario M3C 0P7

View all 22 photos

Learn more about this property
Listing provided by:
UNION CAPITAL REALTY
MLS® number:
C12438334
Agent:
Cecily Liu
*Indicates required field
Name is required
Email is required
Please enter a valid phone number (e.g., 416-111-1111).

About

Cross Streets: Eglinton Ave E & Leslie St. ** Directions: W. Tridels Auberge on the Park presents this bright, high-floor 1-bedroom unit with a rare, unobstructed west viewamong the best in the building + one parking. Designed with keyless entry, a sleek open-concept kitchen with high-end appliances, and modern finishes throughout, this home blends style with convenience. Ideally located near the DVP, highways, the upcoming Eglinton Crosstown LRT, shops, and supermarkets, residents also enjoy premium amenities including a gym, pool, lounge, party room, and BBQ terrace. (id:27476)

Property Highlights

MLS® Number
C12438334
Type
Single Family
Community Name
Banbury-Don Mills
Ownership Type
Condominium/Strata
Parking Space Total
1

Building

Building Type
Apartment
Square Footage
500 - 599 sqft
Bathrooms Total
1
Bedrooms Above Ground
1
Bedrooms Total
1
Amenities
Security/Concierge, Exercise Centre, Party Room
Exterior Finish
Concrete
Fireplace Present
No
Basement Type
None
Basement Features
Building Heating Type
Heat Pump, Not known
Heating Fuel
Electric, Natural gas
Building Cooling Type
Central air conditioning

Location

Street Spotlight - For rent