Main Floor - 411 Blackthorn Avenue, Toronto, Ontario M6M 3C1

Listed for:
$2,700
2 beds
2 baths
Listed 39 days ago
House for rent: Main Floor - 411 Blackthorn Avenue, Toronto, Ontario M6M 3C1

View all 14 photos

Learn more about this property
Listing provided by:
Royal LePage Security Real Estate
MLS® number:
W12456548
Agent:
Anabela Serra
*Indicates required field
Name is required
Email is required
Please enter a valid phone number (e.g., 416-111-1111).

About

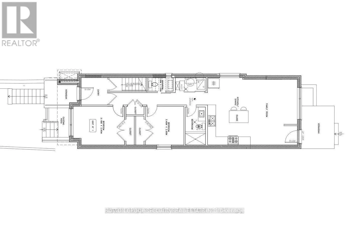
Rogers Rd & Caledonia Rd Discover this fabulous new multi-unit property, offering a beautifully and spacious 2 bedrooms, 1.5 bathroom unit on the main floor and an Open Concept Layout, Located in the desirable Caledonia-Fairbank area, Steps from TTC and the Eglinton West Subway making your commute a breeze. A short 10-15 minute walk to Corso-Italia with plenty of cafes, restaurants and shops and much more! Separate Hydro And Gas Meter. (id:27476)

Property Highlights

MLS® Number
W12456548
Type
Single Family
Community Name
Keelesdale-Eglinton West
Ownership Type
Freehold
Parking Space Total
1

Building

Building Type
House
Storeys
2.00
Square Footage
2000 - 2500 sqft
Bathrooms Total
2
Bedrooms Above Ground
2
Bedrooms Total
2
Exterior Finish
Brick
Fireplace Present
No
Basement Type
None
Basement Features
Building Heating Type
Forced air
Heating Fuel
Natural gas
Building Cooling Type
Central air conditioning

Utilities

Water
Municipal water
Utility Sewer
Sanitary sewer

Room Layout

Kitchen
Main level
7.1 m x 3.55 m
Bedroom
Main level
3.45 m x 2.9 m
Bedroom
Main level
3.18 m x 2.9 m

Location