22 Decarie Circle, Toronto, Ontario M9B 3H8

Listed for:
$2,490
3 beds
3 baths
Listed 64 days ago
House for rent: 22 Decarie Circle, Toronto, Ontario M9B 3H8

View all 9 photos

Learn more about this property
Listing provided by:
iCloud Realty Ltd.
MLS® number:
W12459210
Agent:
Arta Hoxha
*Indicates required field
Name is required
Email is required
Please enter a valid phone number (e.g., 416-111-1111).

About

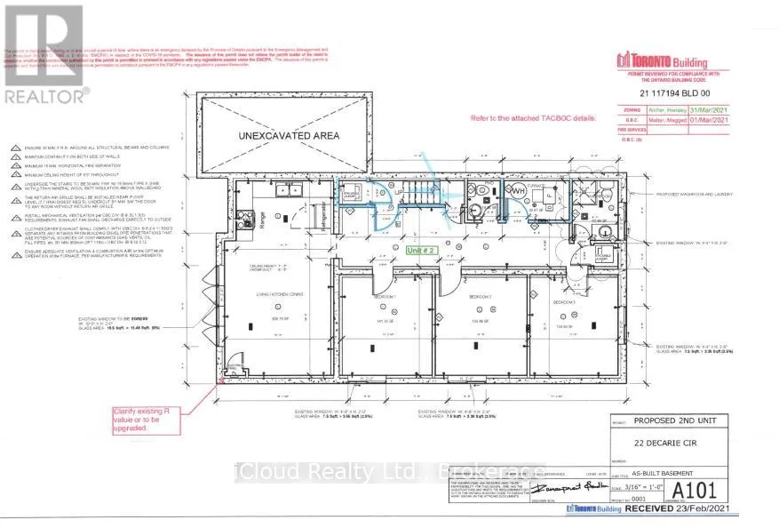
Cross Streets: Eringate-Centennial-West Dean. ** Directions: 22 Decarie circle. Beautiful Renovated Legal Basement Apartment 3 Bedroom with 1.5 bathrooms. The Unit is Legal With Second Dwelling, Meets the City Of Toronto Code, Egress Windows, Fire Separation, Safe and Sound Insulation, Strobe/Smoke/Carbon Monoxide on Every Bedroom, Smoke Detector Shot Off Switch In Furnace if any leaks Detected. Quartz Counter Tops, Separate Laundry, One Parking Space on Driveway, Close To All Transit, Hwy 400,401,427,407,403 and All Amenities close by. Separate Entrance, Separate Laundry, One Parking Space, Tenant Pays 40% of utilities, Minimum 1 year Lease. Main floor rented separately. (id:27476)

Property Highlights

MLS® Number
W12459210
Type
Single Family
Community Name
Eringate-Centennial-West Deane
Ownership Type
Freehold
Land Size
45 x 125 FT
Parking Space Total
1

Building

Building Type
House
Storeys
1.00
Square Footage
1100 - 1500 sqft
Bathrooms Total
3
Bedrooms Above Ground
3
Bedrooms Total
3
Exterior Finish
Brick
Fireplace Present
No
Basement Type
N/A, N/A
Basement Features
Apartment in basement, Separate entrance
Building Heating Type
Forced air
Heating Fuel
Natural gas
Building Cooling Type
Central air conditioning

Utilities

Water
Municipal water
Utility Sewer
Sanitary sewer

Location

Community Spotlight: Homes For rent in Your Neighborhood