507 - 3 Gloucester Street, Toronto, Ontario M4Y 0C6

Listed for:
$2,650
2 beds
1 baths
Listed 35 days ago
Apartment for rent: 507 - 3 Gloucester Street, Toronto, Ontario M4Y 0C6

View all 10 photos

Learn more about this property
Listing provided by:
JDL REALTY INC.
MLS® number:
C12459935
Agent:
Andy You
*Indicates required field
Name is required
Email is required
Please enter a valid phone number (e.g., 416-111-1111).

About

Yonge & Wellesley Modern Luxurious "Gloucester On Yonge" With Direct Access To Wellesley Subway. One Of A Kind. Great Design & Amenities(Pool, Fitness, Theatre Rm,Etc) Steps Away From Yorkville, Uoft, Ryerson, Restaurants, Shops, Parks And More! Building Amenities: Pool, Fitness Room, Theatre Rm, Party Room Etc. Don't Miss It! Students welcomed. (id:27476)

Property Highlights

MLS® Number
C12459935
Type
Single Family
Community Name
Church-Yonge Corridor
Ownership Type
Condominium/Strata

Building

Building Type
Apartment
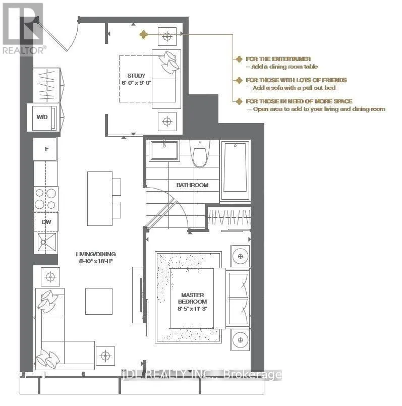
Square Footage
500 - 599 sqft
Bathrooms Total
1
Bedrooms Above Ground
1
Bedrooms Total
2
Exterior Finish
Concrete
Fireplace Present
No
Basement Type
None
Basement Features
Building Heating Type
Forced air
Heating Fuel
Natural gas
Building Cooling Type
Central air conditioning

Location

Street Spotlight - For rent