2211 - 488 University Avenue, Toronto, Ontario M5G 0C1

Listed for:
$2,850
2 beds
1 baths
Listed 1 day ago
Apartment for rent: 2211 - 488 University Avenue, Toronto, Ontario M5G 0C1

View all 11 photos

Learn more about this property
Listing provided by:
RE/MAX EXCEL REALTY LTD.
MLS® number:
C12470515
Agent:
Alfred Yang
*Indicates required field
Name is required
Email is required
Please enter a valid phone number (e.g., 416-111-1111).

About

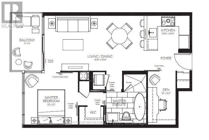
University & Dundas St W Prime Location**University & Dundas**Beautiful & UnObstructed West View Of Downtown & Lakeshore**FloorToCeiling Windows**Open Balcony**Open Concept W/ 9 Ft. Smooth Ceiling**1 Bedroom+Den**Den Can Be A Room W/ Sliding Door**Bathroom has Free Standing Tub**Spacious Kitchen has Plenty Of Cupboards, Counter Space & Breakfast Bar**Above St. Patrick Subway Station**100% Walking Score**Steps To Toronto General Hospital, University of Toronto, OCAD, TMU, City Hall, China Town, Financial District, Eaton Centre. (id:27476)

Property Highlights

MLS® Number
C12470515
Type
Single Family
Community Name
University
Ownership Type
Condominium/Strata

Building

Building Type
Apartment
Square Footage
600 - 699 sqft
Bathrooms Total
1
Bedrooms Above Ground
1
Bedrooms Total
2
Amenities
Security/Concierge, Exercise Centre, Party Room Hospital, Public Transit, Schools, Place of Worship
Exterior Finish
Concrete
Fireplace Present
No
Basement Type
None
Basement Features
Building Heating Type
Coil Fan
Heating Fuel
Other
Building Cooling Type
Central air conditioning

Location

Street Spotlight - For rent