121 - 70 Douro Street, Toronto, Ontario M6K 3N4

Listed for:
$579,900
2 beds
1 baths
Listed 26 days ago
Row / Townhouse for rent: 121 - 70 Douro Street, Toronto, Ontario M6K 3N4

View all 47 photos

Learn more about this property
Listing provided by:
ROYAL LEPAGE FRANK REAL ESTATE
MLS® number:
C12476516
Agent:
Jami Sampson
*Indicates required field
Name is required
Email is required
Please enter a valid phone number (e.g., 416-111-1111).

About

King & Shaw MOTIVATED SELLER! Rare two-story Townhome at Electra Lofts with private King St. patio. This 710 sq. ft., two-level Townhome offers a 1-bedroom plus office area, one bath, and in-suite laundry. The standout feature is your own private patio offering the perfect space for relaxing and entertaining. This unit includes one monitored underground parking spot with ample visitor parking along with all the benefits of the Electra Lofts' impressive amenities: Fitness Centre, Party Room, and Media/Meeting Room located in a fiscally responsible, well-managed building. Steps from the TTC, restaurants, groceries, shopping, and the pedestrian bridge to the heart of Liberty Village - don't miss this unique opportunity! (id:27476)

Property Highlights

MLS® Number
C12476516
Type
Single Family
Community Name
Niagara
Maintenance Fee
493.72
Ownership Type
Condominium/Strata
Parking Space Total
1

Building

Building Type
Row / Townhouse
Storeys
2.00
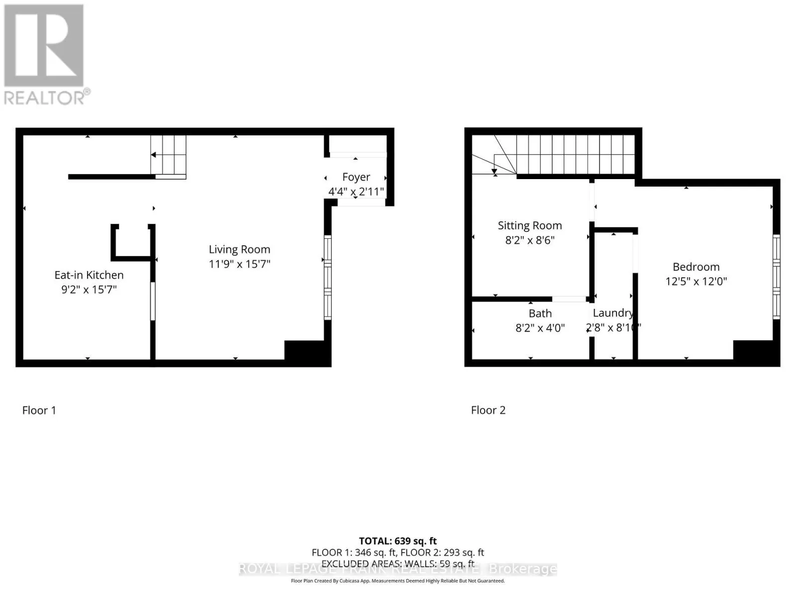
Square Footage
700 - 799 sqft
Bathrooms Total
1
Bedrooms Above Ground
1
Bedrooms Total
2
Amenities
Exercise Centre, Party Room Park, Place of Worship, Public Transit
Exterior Finish
Brick, Concrete
Fireplace Present
No
Basement Type
None
Basement Features
Building Heating Type
Forced air
Heating Fuel
Natural gas
Building Cooling Type
Central air conditioning

Location