228 - 1007 The Queensway, Toronto, Ontario M8Z 0C6

Listed for:
$2,600
2 beds
2 baths
Listed 7 days ago
Apartment for rent: 228 - 1007 The Queensway, Toronto, Ontario M8Z 0C6

View all 10 photos

Learn more about this property
Listing provided by:
RE/MAX WEST REALTY INC.
MLS® number:
W12481665
Agent:
Frank Leo
*Indicates required field
Name is required
Email is required
Please enter a valid phone number (e.g., 416-111-1111).

About

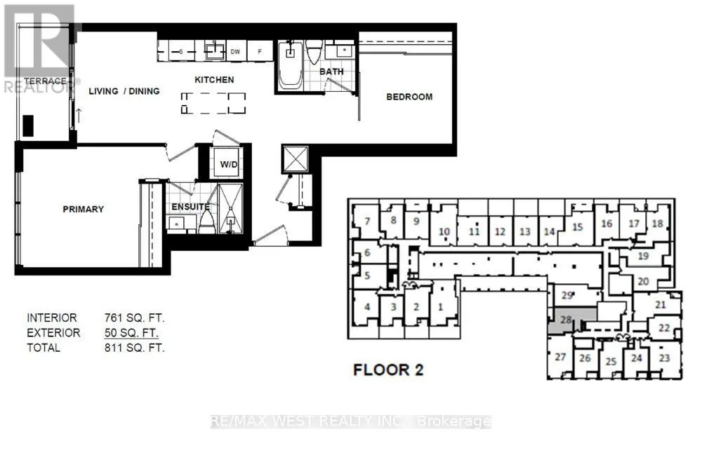
Cross Streets: Islington Ave and The Queensway. ** Directions: Islington Ave to The Queensway. Be the first to live in this stunning, brand-new 2-bedroom, 2-bathroom suite at Verge Condos. Designed with modern comfort in mind, this bright, open-concept home features floor-to-ceiling windows that fill the space with natural light. The sleek kitchen is equipped with stainless steel appliances, and generous cabinet space, perfect for cooking and entertaining. Both bedrooms are spacious and include large closets for ample storage. Enjoy your private balcony, in-suite laundry, and the convenience of one underground parking spot and one locker. Amenities include a fitness centre, party room, co-working space, children's playroom, and a golf simulator. Gas hook-up on balcony for private BBQ. Steps from transit, shopping, restaurants, parks, and easy access to the Gardiner Expressway. Includes internet. Window coverings have been installed by Landlord. (id:27476)

Property Highlights

MLS® Number
W12481665
Type
Single Family
Community Name
Islington-City Centre West
Ownership Type
Condominium/Strata
Parking Space Total
1

Building

Building Type
Apartment
Square Footage
700 - 799 sqft
Bathrooms Total
2
Bedrooms Above Ground
2
Bedrooms Total
2
Amenities
Storage - Locker
Exterior Finish
Concrete
Fireplace Present
No
Basement Type
None
Basement Features
Building Heating Type
Heat Pump, Not known
Heating Fuel
Electric
Building Cooling Type
Central air conditioning

Location

Street Spotlight - For rent