1909 - 25 Dalhousie Street, Toronto, Ontario M5B 2A5

Listed for:
$5,025
3 beds
2 baths
Listed 115 days ago
Apartment for rent: 1909 - 25 Dalhousie Street, Toronto, Ontario M5B 2A5

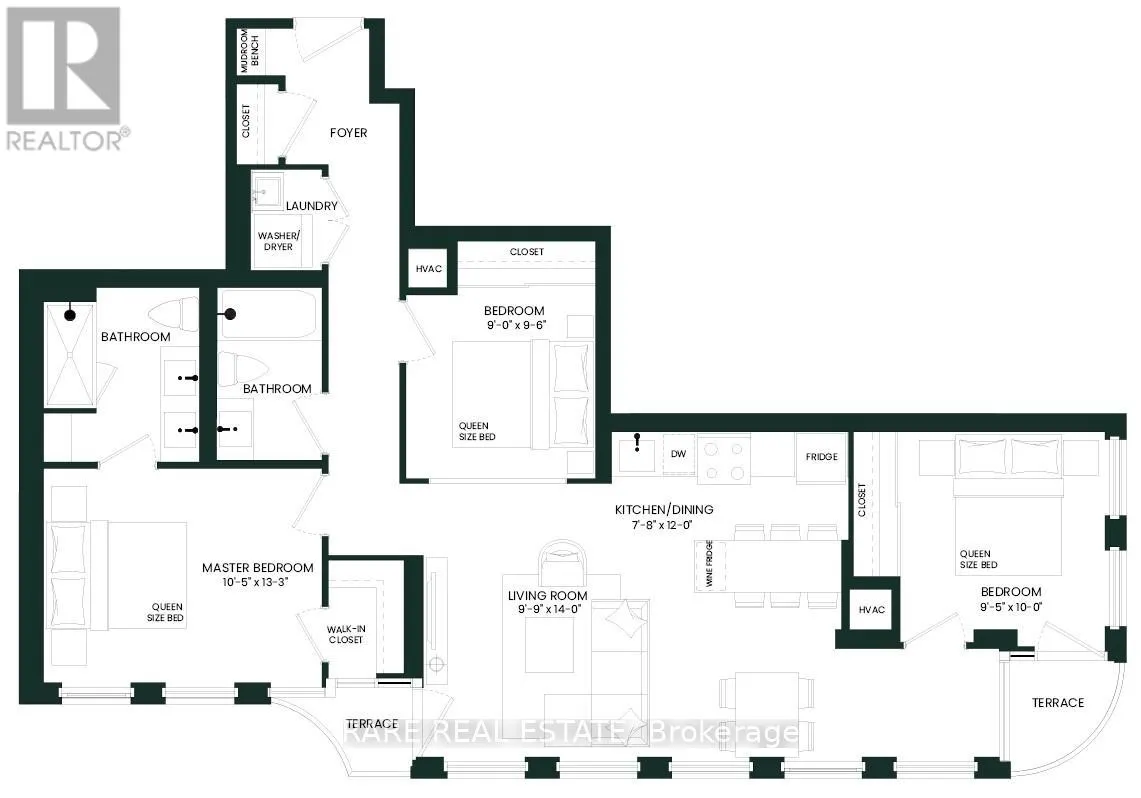
View all 30 photos

About

Queen St. and Church St. Experience the pinnacle of luxury living at The Elm, nestled in the heart of Toronto. This one-bedroom, one-bathroom rental unit features exquisite finishes such as quartz countertops and 9 ceilings, conveniently located just a 5-minute walk from Queen Subway station. Residents enjoy an array of exceptional amenities, including The Temple gym, a European spa-inspired rooftop pool, and multi-sport simulators. For pet lovers, there's a self-serve dog spa, while health-conscious individuals benefit from the Virtual Health Clinic by Cleveland Clinic Canada. Families will appreciate the convenience of Bloomsbury Academy, an esteemed early childhood education center within Elm's premises. Entertain effortlessly on the rooftop BBQ terrace with gas fire pits and stunning city views. Welcome to a lifestyle of unparalleled comfort and convenience at The Elm, where urban living is redefined. Book your viewing today and immerse yourself in the luxury and vibrancy of Toronto's cityscape. (id:27476)

Property Highlights

MLS® Number
C12484410
Type
Single Family
Community Name
Church-Yonge Corridor
Ownership Type
Condominium/Strata

Building

Building Type
Apartment
Square Footage
1000 - 1199 sqft
Bathrooms Total
2
Bedrooms Above Ground
3
Bedrooms Total
3
Amenities
Security/Concierge, Exercise Centre, Party Room, Recreation Centre Hospital, Park, Schools
Exterior Finish
Brick, Brick Facing
Fireplace Present
No
Basement Type
None
Basement Features
Building Heating Type
Coil Fan
Heating Fuel
Natural gas
Building Cooling Type
Central air conditioning

Location

Learn more about this property
Listing provided by:
RARE REAL ESTATE
MLS® number:
C12484410
Agent:
Mark Adelson
*Indicates required field
Name is required
Email is required
Please enter a valid phone number (e.g., 416-111-1111).

Street Spotlight - For rent