1805 - 57 St. Joseph Street, Toronto, Ontario M5S 0C5

Listed for:
$898,000
2 beds
2 baths
Listed 124 days ago
Apartment for rent: 1805 - 57 St. Joseph Street, Toronto, Ontario M5S 0C5

View all 30 photos

About

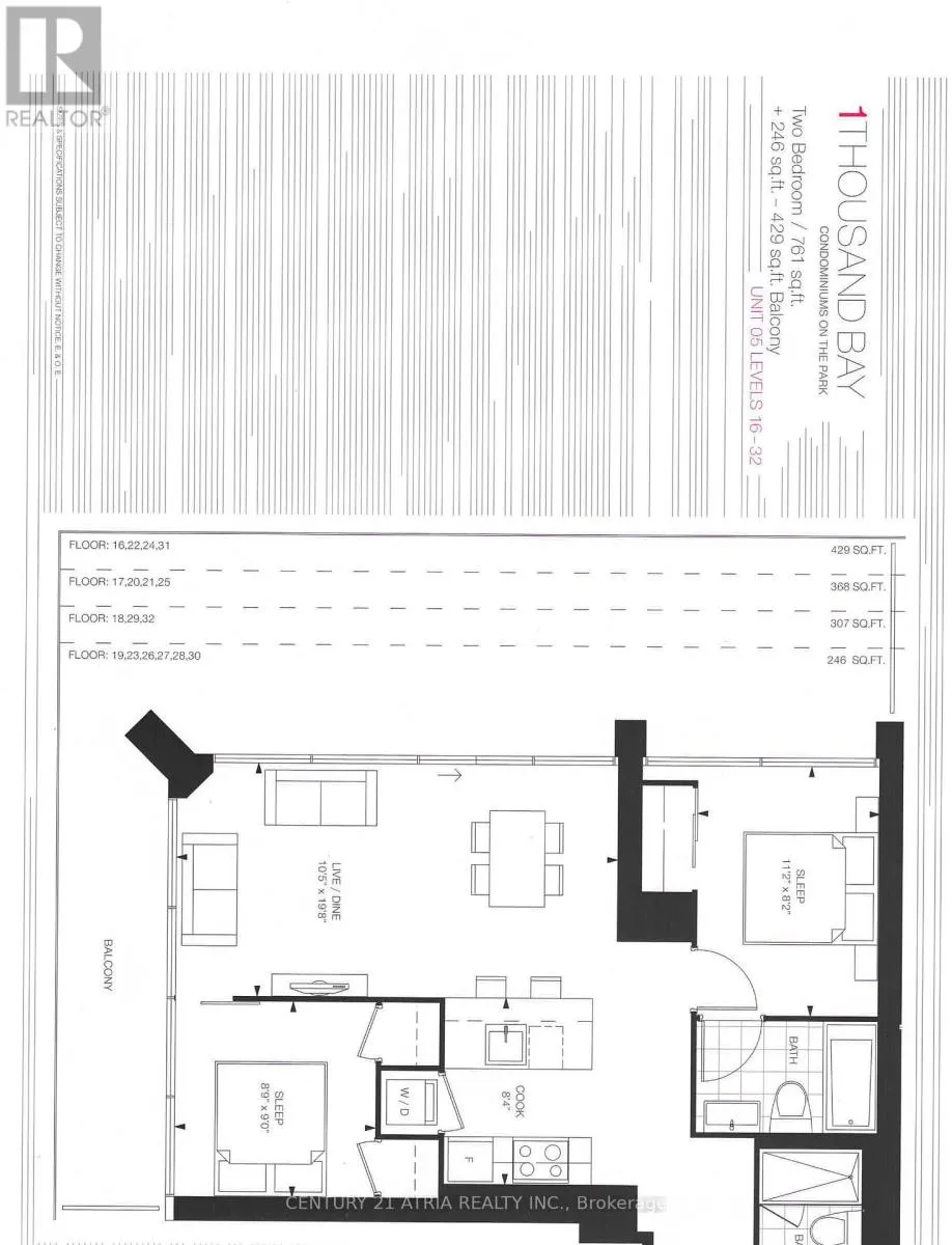
Bay Street and St Joseph With new paint and new floors throughout, this property is clean, modern, and ready for immediate occupancy. make this home warm, inviting, and ready to welcome its next owner. Stunning 2-bedroom suite in the heart of the Bay Street Corridor, one of Toronto's most vibrant and upscale neighborhoods! This 761 sq. ft. home features premium laminate floors throughout, kitchen with stainless steel appliances. Enjoy an additional 307 sq. ft. of private outdoor living space on the oversized southwest-facing balcony. perfect for entertaining or relaxing with panoramic city views. Located steps from U of T, Wellesley subway station, Yorkville, top hospitals, shops, restaurants, and more. Enjoy top-tier amenities including a fitness centre, outdoor pool, concierge, party room, and BBQ area. (id:27476)

Property Highlights

MLS® Number
C12487058
Type
Single Family
Community Name
Bay Street Corridor
Maintenance Fee
609.50
Ownership Type
Condominium/Strata

Building

Building Type
Apartment
Square Footage
700 - 799 sqft
Bathrooms Total
2
Bedrooms Above Ground
2
Bedrooms Total
2
Amenities
Security/Concierge, Exercise Centre, Recreation Centre Hospital, Park, Public Transit, Schools
Exterior Finish
Brick
Fireplace Present
No
Basement Type
None
Basement Features
Building Heating Type
Forced air
Heating Fuel
Natural gas
Building Cooling Type
Central air conditioning

Location

Learn more about this property
Listing provided by:
CENTURY 21 ATRIA REALTY INC.
MLS® number:
C12487058
Agent:
Jun Du
*Indicates required field
Name is required
Email is required
Please enter a valid phone number (e.g., 416-111-1111).

Street Spotlight - For sale