3202 - 55 Cooper Street, Toronto, Ontario M5E 0G1

Listed for:
$2,600
2 beds
1 baths
Listed 19 days ago
Apartment for rent: 3202 - 55 Cooper Street, Toronto, Ontario M5E 0G1

View all 16 photos

Learn more about this property
Listing provided by:
RIFE REALTY
MLS® number:
C12489332
Agent:
Nina Au
*Indicates required field
Name is required
Email is required
Please enter a valid phone number (e.g., 416-111-1111).

About

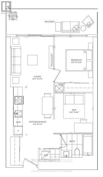
Cross Streets: Yonge and Queens Quay East. ** Directions: North of Queens Quay E. Rare 10-ft ceilings with floor-to-ceiling windows and unobstructed panoramic city views! Spacious 1+Den layout, featuring an oversized Den ideal for home office or guest room. Sleek open-concept kitchen with built-in Miele appliances, quartz countertops, and engineered hardwood floors.Enjoy world-class amenities: state-of-the-art fitness centre, indoor pool, theatre, rooftop terrace with BBQ, party/meeting rooms & 24/7 security.Prime waterfront location-steps to Lake Ontario, Sugar Beach, Farm Boy, Loblaws, restaurants & transit. 10-min walk to Union Station, 7-min walk to P.A.T.H ! Locker included. Rent covers high-speed internet & Unity premium gym membership! (id:27476)

Property Highlights

MLS® Number
C12489332
Type
Single Family
Community Name
Waterfront Communities C8
Ownership Type
Condominium/Strata

Building

Building Type
Apartment
Square Footage
600 - 699 sqft
Bathrooms Total
1
Bedrooms Above Ground
1
Bedrooms Total
2
Amenities
Storage - Locker
Exterior Finish
Concrete
Fireplace Present
No
Basement Type
None
Basement Features
Building Heating Type
Forced air, Not known
Heating Fuel
Electric, Natural gas
Building Cooling Type
Central air conditioning

Location

Street Spotlight - For rent