149 Alexis Boulevard, Toronto, Ontario M3H 2R1

Listed for:
$2,999,000
5 beds
6 baths
Listed 63 days ago
House for rent: 149 Alexis Boulevard, Toronto, Ontario M3H 2R1

View all 48 photos

Learn more about this property
Listing provided by:
BAY STREET GROUP INC.
MLS® number:
C12489364
Agent:
Bruce Fei Li
*Indicates required field
Name is required
Email is required
Please enter a valid phone number (e.g., 416-111-1111).

About

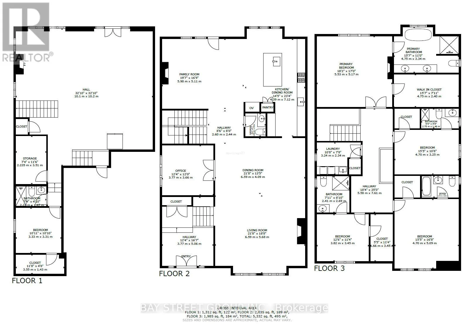
Cross Streets: Bathurst/Sheppard/E Of Faywood. ** Directions: Bathurst & Sheppard. Welcome to 149 Alexis Blvd! This exceptional newly custom-built mansion (2019) presents unparalleled elegance and luxury. Home sits on a prestigious 44 x 161 ft premium lot. Nestled in a highly sought-after cul de sac in Clanton Park neighborhoods. Boasting over 5,332 SQF luxurious living spaces(4,020SF in Main & 2nd) with soaring ceilings: over 14 ft in the grand entrance foyer, 9.5ft on the main floor, extremely rare 12 ft in the finished W-A-L-K-O-U-T basement. Stone front and 9-feet grand double door offers impressive curb appeal. The gourmet kitchen boasts premium countertops, backsplash, custom cabinetry & Wolf appliances. A bright and spacious home office on the main floor. Each of the four bedrooms has its own ensuite bath. Spa-inspired bathrooms showcase lavish details and premium fixtures. Natural light floods the interiors all day along through expansive windows and THREE stunning SKYLIGHTS. House also equipped with FOUR high end GAS FIREPLACES that offer your family endless warmth and cozyness. The finished walkout basement features 12-feet soaring ceiling, HEATED FLOOR, additional bedroom, bathroom, and a versatile recreation area. Additional features include built-in central audio system and surveillance system. Sprinkler system installed throughout front & back yard. Prime location: steps from public transit and plazas, walking distance to schools, Earl Bales Park, trails, and the community centre. Conveniently close to Hwy 401, Yorkdale Shopping Centre, Don Valley Golf Course, top private schools, and within the boundary of the highly ranked William Lyon Mackenzie CI (renowned MaCS program). This property delivers luxury, functionality, and a Prime location all in one. A Must See! (id:27476)

Property Highlights

MLS® Number
C12489364
Type
Single Family
Community Name
Clanton Park
Ownership Type
Freehold
Land Size
44 x 161 FT
Parking Space Total
4

Building

Building Type
House
Storeys
2.00
Square Footage
3500 - 5000 sqft
Bathrooms Total
6
Bedrooms Above Ground
4
Bedrooms Total
5
Amenities
Fireplace(s) Park, Place of Worship, Public Transit, Schools
Exterior Finish
Stone, Stucco
Fireplace Present
Yes
Basement Type
N/A (Finished), N/A
Basement Features
Walk out
Building Heating Type
Forced air
Heating Fuel
Natural gas
Building Cooling Type
Central air conditioning

Utilities

Water
Municipal water
Utility Sewer
Sanitary sewer

Room Layout

Bedroom 4
Second level
3.84 m x 3.45 m
Laundry room
Second level
3.24 m x 2.34 m
Bedroom
Second level
3.33 m x 3.31 m
Primary Bedroom
Second level
5.53 m x 5.17 m
Bedroom 2
Second level
4.7 m x 3.25 m
Bedroom 3
Second level
5.09 m x 4.7 m
Recreational, Games room
Basement
10.2 m x 10.1 m
Kitchen
Main level
7.12 m x 4.39 m
Eating area
Main level
7.12 m x 4.39 m
Family room
Main level
5.98 m x 5.11 m
Living room
Main level
6.59 m x 5.68 m
Dining room
Main level
6.59 m x 4.09 m
Office
Main level
3.77 m x 3.66 m

Location