204a - 716 Gordon Baker Road, Toronto, Ontario M2H 3B4

Listed for:
$11
0 beds
0 baths
Listed 169 days ago
Offices for rent: 204a - 716 Gordon Baker Road, Toronto, Ontario M2H 3B4

View all 34 photos

About

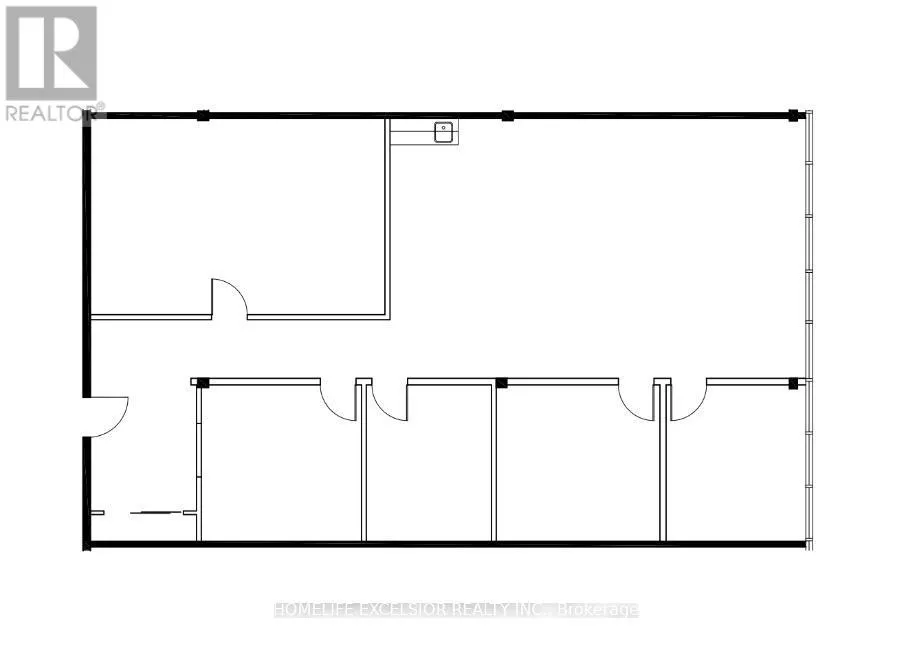
Cross Streets: Steeles & Victoria Park. ** Directions: Map. Prime Location! Situated near the junction of Hwy 404 and Steeles Avenue, with easy access to Woodbine Avenue, DVP, Hwy 401, and Hwy 407, this office unit boasts unparalleled convenience. Featuring three spacious office rooms, a well-appointed boardroom, a generously-sized open office area, a convenient kitchenette, and a welcoming reception area, this space is ideal for any business looking to thrive in a strategic and accessible location. (id:27476)

Property Highlights

MLS® Number
C12489382
Type
Office
Community Name
Hillcrest Village

Building

Building Type
Offices
Square Footage
2064 sqft
Fireplace Present
No
Basement Type
Basement Features
Building Heating Type
Forced air
Heating Fuel
Natural gas
Building Cooling Type
Fully air conditioned

Utilities

Water
Municipal water

Location

Learn more about this property
Listing provided by:
HOMELIFE EXCELSIOR REALTY INC.
MLS® number:
C12489382
Agent:
Victor Sing
*Indicates required field
Name is required
Email is required
Please enter a valid phone number (e.g., 416-111-1111).

Street Spotlight - For lease