203 - 109 Vanderhoof Avenue, Toronto, Ontario M4G 2H7

Listed for:
$21
0 beds
1 baths
Listed 16 days ago
Offices for rent: 203 - 109 Vanderhoof Avenue, Toronto, Ontario M4G 2H7

View all 22 photos

Learn more about this property
Listing provided by:
HARVEY KALLES REAL ESTATE LTD.
MLS® number:
C12497958
Agent:
Elliott Shiff
*Indicates required field
Name is required
Email is required
Please enter a valid phone number (e.g., 416-111-1111).

About

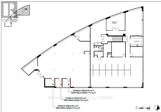
Eglinton Ave E. & Laird Dr. Fabulous Second Floor Premier Office Space Combining Traditional Post and Beam Interior With Modern High End Finishes. Plenty of Natural Light, Featuring Private Entrance, High Ceilings and Corner Exposure On Two Sides. Extremely Flexible Space With Private Boardrooms. Large Open Areas and Private Offices. Also Includes Large Kitchen and Private Washroom. Great Signage. Plenty of Parking. Conveniently Located Just Minutes from Laird and Eglinton. Space could be demised into two equal sized units. (id:27476)

Property Highlights

MLS® Number
C12497958
Type
Office
Community Name
Leaside

Building

Building Type
Offices
Square Footage
9435 sqft
Bathrooms Total
1
Fireplace Present
No
Basement Type
Basement Features
Building Heating Type
Forced air
Heating Fuel
Natural gas
Building Cooling Type
Fully air conditioned

Utilities

Water
Municipal water

Location