Th 103 - 2301 Danforth Avenue, Toronto, Ontario M4C 1K5

Listed for:
$599,900
2 beds
2 baths
Listed 66 days ago
Apartment for rent: Th 103 - 2301 Danforth Avenue, Toronto, Ontario M4C 1K5

View all 38 photos

Learn more about this property
Listing provided by:
RE/MAX HALLMARK REALTY LTD.
MLS® number:
E12498492
Agent:
Jack Ly
*Indicates required field
Name is required
Email is required
Please enter a valid phone number (e.g., 416-111-1111).

About

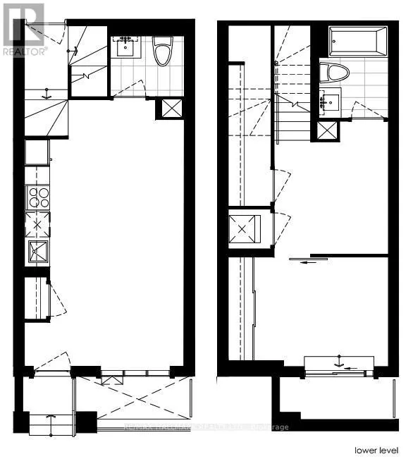
Danforth Ave & Woodbine Rarely offer ground unit condo with direct entry via residential street at Canvas Condos! This 2 level unit feels like a townhome in trendy Danforth Neighborhood. Featuring open concept living/dinning area and powder room on main floor and den plus primary bedroom with 4 piece ensuite on lower level with walk to patio. Building features: fitness center; yoga studio, party room, outdoor rooftop terrace, fire pit, BBQ, with Spectacular Views Of Toronto's Skyline & Lake Ontario. Walk to Main subway station and nearby Danforth GO station offering express service to Union Station. Plus dedicated bike lanes right outside your door! (id:27476)

Property Highlights

MLS® Number
E12498492
Type
Single Family
Community Name
East End-Danforth
Maintenance Fee
642.36
Ownership Type
Condominium/Strata

Building

Building Type
Apartment
Square Footage
700 - 799 sqft
Bathrooms Total
2
Bedrooms Above Ground
1
Bedrooms Total
2
Amenities
Security/Concierge, Exercise Centre, Party Room, Visitor Parking, Storage - Locker Hospital, Public Transit, Schools
Exterior Finish
Brick
Fireplace Present
No
Basement Type
N/A (Other, See Remarks)
Basement Features
Building Heating Type
Heat Pump, Not known
Heating Fuel
Electric, Natural gas
Building Cooling Type
Central air conditioning

Location

Street Spotlight - For sale