2210 - 8 Hillcrest Avenue, Toronto, Ontario M2N 6Y6

Listed for:
$3,000
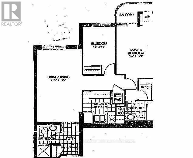
2 beds
2 baths
Listed 7 days ago
Apartment for rent: 2210 - 8 Hillcrest Avenue, Toronto, Ontario M2N 6Y6

View all 25 photos

Learn more about this property
Listing provided by:
ROYAL LEPAGE SIGNATURE REALTY
MLS® number:
C12508254
Agent:
Jeff T Alexander
*Indicates required field
Name is required
Email is required
Please enter a valid phone number (e.g., 416-111-1111).

About

Yonge & Sheppard Direct Access To Subway/TTC & Loblaws, Empress Walk, Theatre, Shopping, Restaurants At Your Door! Prestigious Schools (McKee PS/Bayview MS/Earl Heig SS) 24 Hour Concierge. Breathtaking Unobstructed Easterly Views From This Beautiful Bright & Spacious East Facing 2 Bedroom/2 Bath At The Pinnacle. Fantastic Spacious Floorplan with Hardwood Flooring Throughout. Excellent Location in The Heart of North York Center Close to Restaurants, Shops, Subway Line 1. (id:27476)

Property Highlights

MLS® Number
C12508254
Type
Single Family
Community Name
Willowdale East
Ownership Type
Condominium/Strata
Parking Space Total
1

Building

Building Type
Apartment
Square Footage
800 - 899 sqft
Bathrooms Total
2
Bedrooms Above Ground
2
Bedrooms Total
2
Amenities
Security/Concierge, Exercise Centre, Party Room, Sauna, Visitor Parking Park, Public Transit, Schools
Exterior Finish
Concrete, Steel
Fireplace Present
No
Basement Type
None
Basement Features
Building Heating Type
Forced air
Heating Fuel
Natural gas
Building Cooling Type
Central air conditioning

Location

Street Spotlight - For rent