1017 - 9 Tecumseth Street, Toronto, Ontario M5V 3G4

Listed for:
$2,450
2 beds
1 baths
Listed 7 days ago
Apartment for rent: 1017 - 9 Tecumseth Street, Toronto, Ontario M5V 3G4

View all 14 photos

Learn more about this property
Listing provided by:
RIGHT AT HOME REALTY
MLS® number:
C12508754
Agent:
Daniel Federico
*Indicates required field
Name is required
Email is required
Please enter a valid phone number (e.g., 416-111-1111).

About

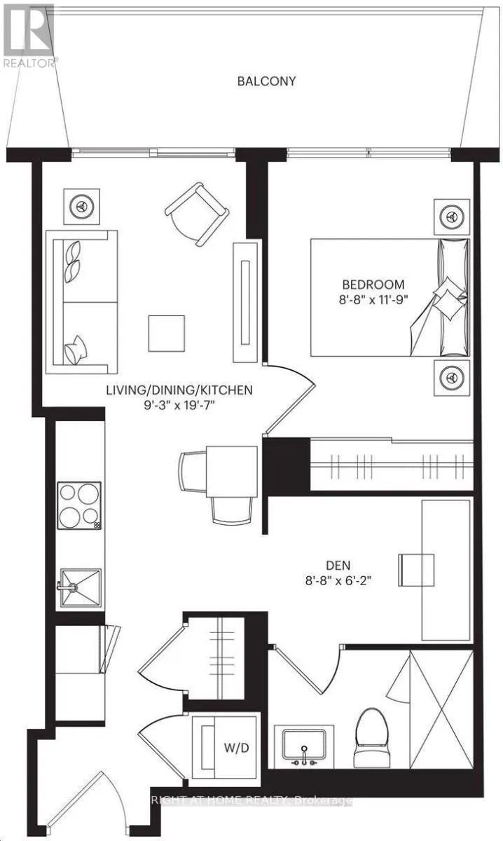
Tecumseth Street & King St W King West at its BEST!! Stunning Brand New Executive One Bedroom and Den Suite 520 sqft , Bright Open Concept and Never Lived In. Close To All Major Transit. West Condos by Aspen Ridge Homes. Spacious, Great Layout, With East View Of The City that You can enjoy from the large balcony. Contemporary Kitchen Equipped with Brand New State of the art Appliances Wide Open Living + Dining Room, Master Bedroom Walks Out To Balcony, Large Windows. Quick Easy Access To Gardner Expressway, The Shops at the Well, Liberty Village, Porter Airport, Garrison Common Park & Coronation Park+ Much More (id:27476)

Property Highlights

MLS® Number
C12508754
Type
Single Family
Community Name
Niagara
Ownership Type
Condominium/Strata

Building

Building Type
Apartment
Square Footage
500 - 599 sqft
Bathrooms Total
1
Bedrooms Above Ground
1
Bedrooms Total
2
Amenities
Recreation Centre, Exercise Centre, Party Room, Visitor Parking
Exterior Finish
Concrete
Fireplace Present
No
Basement Type
None
Basement Features
Building Heating Type
Forced air
Heating Fuel
Natural gas
Building Cooling Type
Central air conditioning

Location

Street Spotlight - For rent