734 Shaw Street, Toronto, Ontario M6G 3L7

Listed for:
$2,849,000
7 beds
6 baths
Listed 6 days ago
House for rent: 734 Shaw Street, Toronto, Ontario M6G 3L7

View all 50 photos

Learn more about this property
Listing provided by:
RE/MAX WEST REALTY INC.
MLS® number:
C12538598
Agent:
Kam Nagra
*Indicates required field
Name is required
Email is required
Please enter a valid phone number (e.g., 416-111-1111).

About

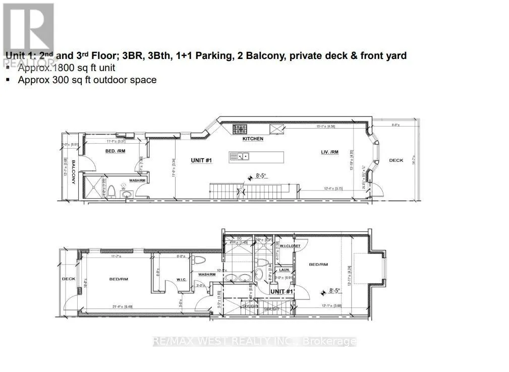
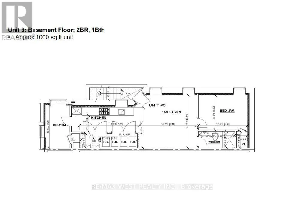
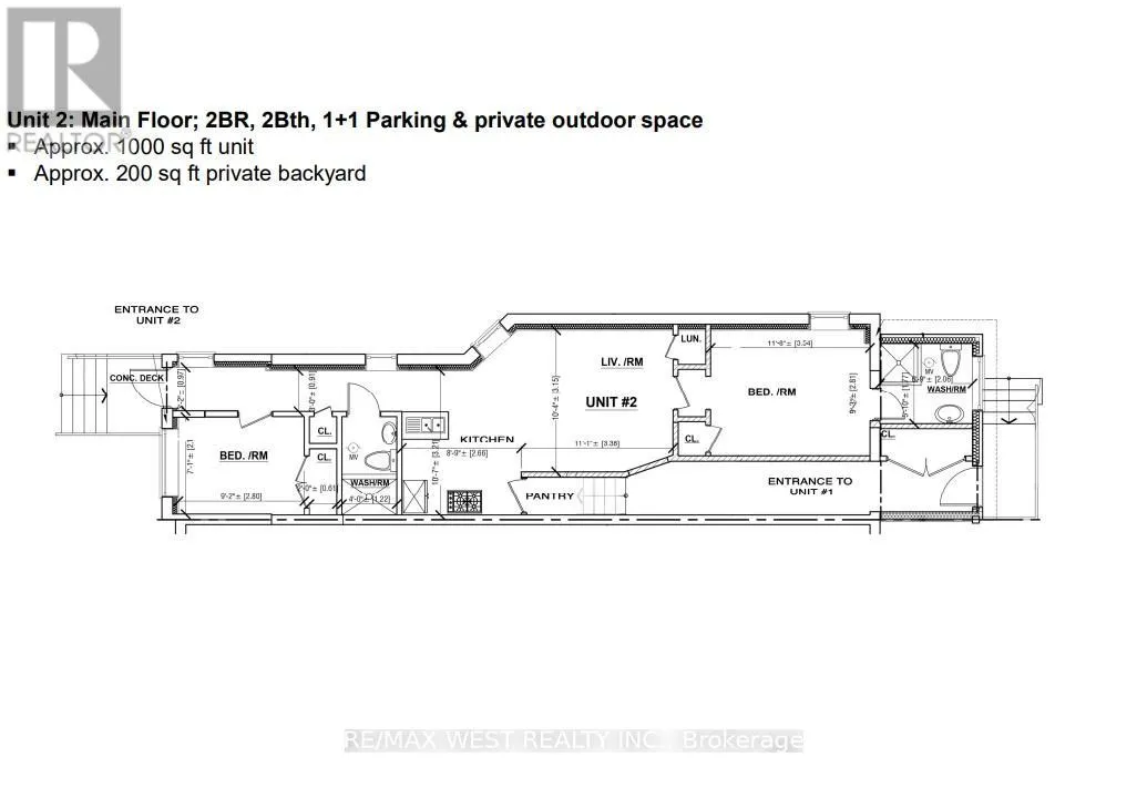
Shaw St. & Bloor St A smart, stylish investment in the heart of Little Italy. This fully rebuilt home offers nearly 3,800 total sq ft including basement of luxury living across 3 finished units with separate entrances, hydro, HVAC, laundry, and kitchens. High-end finishes, custom millwork, Sub-Zero/Wolf appliances, and spa-like baths add turnkey appeal. Ideal for portfolio investors, multi-generation or live-in owners - occupy one unit and let the others cash flow. Steps to Bloor, TTC, U of T, and Ossington's best restaurants. Truly one of Toronto's most thoughtful multi-unit redevelopments. (id:27476)

Property Highlights

MLS® Number
C12538598
Type
Single Family
Community Name
Palmerston-Little Italy
Ownership Type
Freehold
Land Size
17.5 x 121 FT
Parking Space Total
4

Building

Building Type
House
Storeys
3.00
Square Footage
2500 - 3000 sqft
Bathrooms Total
6
Bedrooms Above Ground
5
Bedrooms Total
7
Amenities
Separate Heating Controls, Separate Electricity Meters Park, Public Transit, Schools
Exterior Finish
Brick, Stucco
Fireplace Present
Yes
Basement Type
N/A (Finished), N/A
Basement Features
Walk out, Separate entrance
Building Heating Type
Forced air
Heating Fuel
Natural gas
Building Cooling Type
Central air conditioning

Utilities

Water
Municipal water
Utility Sewer
Sanitary sewer

Room Layout

Living room
Second level
4.56 m x 4.2 m
Dining room
Second level
3.34 m x 3.47 m
Kitchen
Second level
5.25 m x 3.35 m
Bedroom
Second level
3.37 m x 1.86 m
Bedroom
Third level
4.24 m x 3.68 m
Primary Bedroom
Third level
3.53 m x 3.25 m
Living room
Lower level
4.31 m x 3.94 m
Kitchen
Lower level
4.44 m x 2.45 m
Bedroom
Lower level
3.66 m x 2.6 m
Bedroom
Lower level
3.2 m x 2.39 m
Living room
Main level
3.38 m x 3.15 m
Kitchen
Main level
3.21 m x 2.66 m
Bedroom
Main level
3.54 m x 2.81 m
Bedroom
Main level
2.8 m x 2.1 m

Location

Street Spotlight - For sale