82 Lanark Avenue, Toronto, Ontario M6E 2G4

Listed for:
$1,699,000
5 beds
3 baths
Listed 6 days ago
Triplex for rent: 82 Lanark Avenue, Toronto, Ontario M6E 2G4

View all 7 photos

Learn more about this property
Listing provided by:
KELLER WILLIAMS REFERRED URBAN REALTY
MLS® number:
C12540940
Agent:
Arthur Sercan
*Indicates required field
Name is required
Email is required
Please enter a valid phone number (e.g., 416-111-1111).

About

Cross Streets: Eglinton / Oakwood. ** Directions: Eglinton/just off of Oakwood. Great Investment Opportunity...Live In One Unit And Rent The Other Two, Or Use All 3 Levels For The Entire Family. 3 Separate Metered Units With Parking. Steps To Future Oakwood Lrt Station & To Existing Eglinton West Subway Station On University Line. Minutes To Allen Rd., 401 & Downtown Toronto. This Location Is Conveniently Steps To All Your Shopping, Restaurants & Schools. (id:27476)

Property Highlights

MLS® Number
C12540940
Type
Multi-family
Community Name
Oakwood Village
Land Size
25 x 98 FT
Parking Space Total
3

Building

Building Type
Triplex
Storeys
2.00
Square Footage
1500 - 2000 sqft
Bathrooms Total
3
Bedrooms Above Ground
4
Bedrooms Total
5
Exterior Finish
Brick
Fireplace Present
No
Basement Type
N/A, N/A
Basement Features
Apartment in basement, Separate entrance
Building Heating Type
Heating Fuel
Building Cooling Type
None

Utilities

Water
Municipal water
Utility Sewer
Sanitary sewer

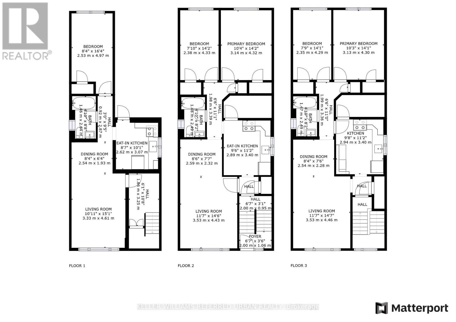
Room Layout

Living room
Second level
3.53 m x 4.43 m
Dining room
Second level
3.53 m x 4.43 m
Kitchen
Second level
2.89 m x 3.4 m
Bedroom
Second level
3.14 m x 4.32 m
Bedroom 2
Second level
2.38 m x 4.33 m
Living room
Third level
3.53 m x 4.46 m
Kitchen
Third level
2.94 m x 3.4 m
Bedroom
Third level
3.13 m x 4.3 m
Bedroom 2
Third level
2.35 m x 4.29 m
Living room
Lower level
3.33 m x 4.61 m
Kitchen
Lower level
2.62 m x 3.07 m
Bedroom
Lower level
2.53 m x 4.97 m

Location