15 Blaketon Road, Toronto, Ontario M9B 4V8

Listed for:
$1,275,000
5 beds
6 baths
Listed 52 days ago
House for rent: 15 Blaketon Road, Toronto, Ontario M9B 4V8

View all 8 photos

Learn more about this property
Listing provided by:
RIGHT AT HOME REALTY, BROKERAGE
MLS® number:
W12556068
Agent:
Robert James Morgan
*Indicates required field
Name is required
Email is required
Please enter a valid phone number (e.g., 416-111-1111).

About

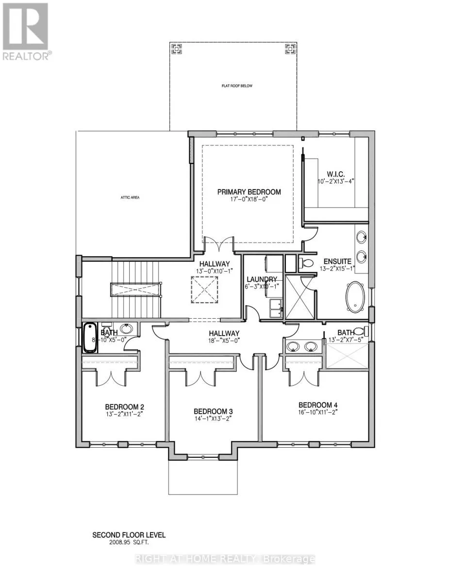
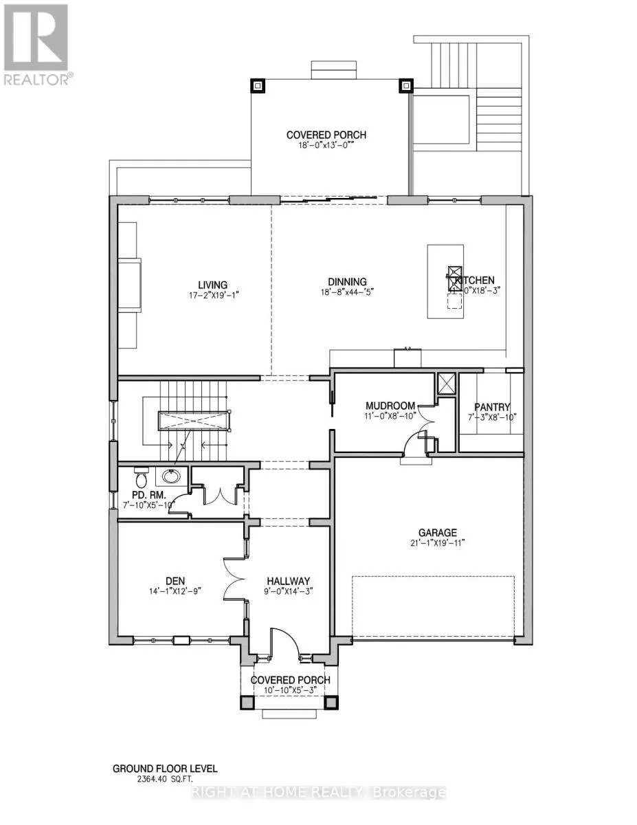
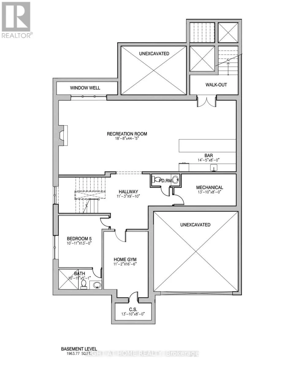
Cross Streets: Burnhamthorpe Rd & The East Mall. ** Directions: South of Burnhamthorpe Rd Between The East Mall and Kipling. With permits secured and a respected local builder leading the way, this custom-built luxury residence offers a rare blend of timeless architecture and exceptional craftsmanship, all on an oversized lot backing onto peaceful greenspace. The exterior exudes elegance with custom-cut natural limestone, full-bed brick, premium shingles, colour-matched dual-pane windows and a grand 42" x 96" fiberglass entry door. Outdoor living is elevated with a 13' x 18' covered porch with cedar soffit, interlock pathways, fresh sod and a full brick walk-up from the basement, complemented by an insulated garage, limestone porch and paved drive. Inside, soaring 12', 10' and 9' ceilings, smooth finishes, plaster mouldings, wall paneling and wide-plank white oak flooring set a refined tone. The designer kitchen showcases custom cabinetry, a 5' x 9' island, 2" porcelain counters, Thermador appliances, a hidden pantry and seamless accent lighting. The great room features a striking book-matched porcelain fireplace and 72" linear gas unit, while the library is framed by a stunning glass-panel entry. The primary suite offers a raised coffered ceiling, custom walk-in closet and a spa-inspired ensuite with oversized porcelain slabs, curbless steam shower and in-floor heating. Additional highlights include open-riser staircases, custom millwork, luxury baths, a 12' basement bar, gym with glass entry and ample integrated storage. Modern systems include dual-stage Trane HVAC, hydronic in-floor heating, Control4 automation, security cameras, distributed audio, central vac, WiFi boosters, EV-ready garage and extensive designer lighting. Steps to top-rated schools, transit, Kipling Station, restaurants, shops and all the amenities of Bloor St W and Dundas St W, with quick access to Hwy 427 and the city, this home delivers unmatched convenience and sophistication. The list price is for the lot. The full cost of the home including the lot, permits, development fees and the build is $3.5m. (id:27476)

Property Highlights

MLS® Number
W12556068
Type
Single Family
Community Name
Islington-City Centre West
Ownership Type
Freehold
Land Size
60 x 132 FT
Parking Space Total
6

Building

Building Type
House
Storeys
2.00
Square Footage
3500 - 5000 sqft
Bathrooms Total
6
Bedrooms Above Ground
4
Bedrooms Total
5
Amenities
Separate Heating Controls
Exterior Finish
Brick, Stone
Fireplace Present
Yes
Basement Type
N/A (Finished), N/A
Basement Features
Separate entrance
Building Heating Type
Forced air
Heating Fuel
Natural gas
Building Cooling Type
Central air conditioning

Utilities

Water
Municipal water
Utility Sewer
Sanitary sewer

Location

Community Spotlight: Homes For sale in Your Neighborhood