19 Mitcham Drive, Toronto, Ontario M8W 2J6

Listed for:
$999,900
3 beds
2 baths
Listed 2 days ago
House for rent: 19 Mitcham Drive, Toronto, Ontario M8W 2J6

View all 47 photos

Learn more about this property
Listing provided by:
RE/MAX PROFESSIONALS INC.
MLS® number:
W12560788
Agent:
Elizabeth Jane Johnson
*Indicates required field
Name is required
Email is required
Please enter a valid phone number (e.g., 416-111-1111).

About

Browns Line/Evans Ave Fire Up the Grill and Embrace Backyard Living with Direct Views of Delma Park! Discover the charm and comfort of this lovely 2+1 bedroom detached home in the heart of West Alderwood. Set on an exceptional 41' x 125' lot with rare park-side privacy and no rear neighbours, this property offers space to grow and room to dream - ideal for first-time buyers, young families, or those looking to build or expand in a sought-after pocket. Step inside to a warm and inviting layout with a walkout from the main level to a private backyard oasis. Whether you're relaxing with your morning coffee or hosting summer get-togethers, the spacious patio and included hot tub make it a perfect outdoor retreat - with Delma Park as your backdrop. Major upgrades offer peace of mind for years to come, including exterior stucco with added insulation, roof (2022), newer furnace, Magic Windows with a 30-year warranty, and a tankless water heater. The beautifully renovated lower level feels like a private suite, featuring a large primary bedroom with walk-in closet and a luxurious spa-like ensuite - ideal for quiet relaxation or extended family. Located steps from Sir Adam Beck Park & School, Alderwood Community Centre, Etobicoke Valley Park trails, Sherway Gardens, Farm Boy, and Long Branch GO. Commuters will love quick access to Hwy 427, QEW, and Gardiner. Private driveway parks 3 cars. Don't miss this rare opportunity to secure a park-side lot in one of Alderwood's most loved communities - where convenience, nature, and neighbourhood charm come together. ***Flexible 1.5-storey layout featuring 2 bedrooms on the upper level, with the original 3rd bedroom on the main floor currently functioning as a dining room (easily converted back if desired). The lower level was thoughtfully designed as a primary retreat for a shift-working owner, offering a spacious bedroom, a huge walk-in closet, and a spa-inspired ensuite-ideal for those seeking privacy, quiet, or a separate sanctuary within the home.*** (id:27476)

Property Highlights

MLS® Number
W12560788
Type
Single Family
Community Name
Alderwood
Ownership Type
Freehold
Land Size
41.7 x 125 FT
Parking Space Total
3

Building

Building Type
House
Storeys
1.50
Square Footage
700 - 1100 sqft
Bathrooms Total
2
Bedrooms Above Ground
3
Bedrooms Total
3
Amenities
Park, Public Transit, Schools
Exterior Finish
Concrete, Stucco
Fireplace Present
No
Basement Type
N/A (Finished)
Basement Features
Building Heating Type
Forced air
Heating Fuel
Natural gas
Building Cooling Type
Central air conditioning

Utilities

Water
Municipal water
Utility Sewer
Sanitary sewer

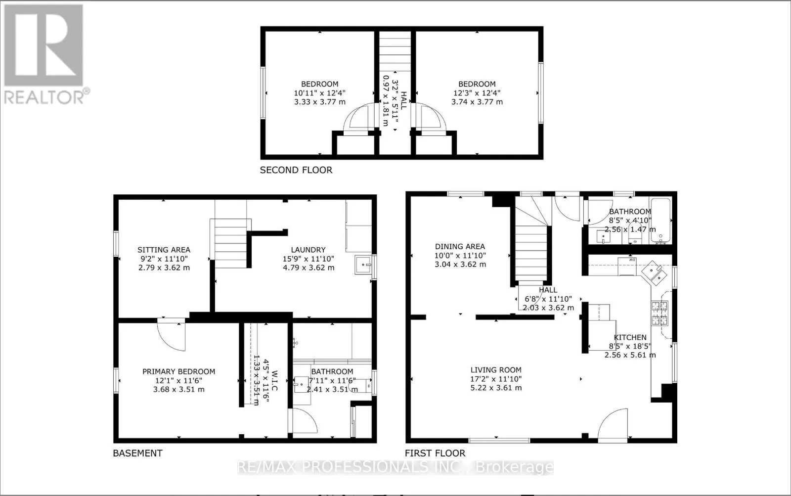
Room Layout

Bedroom 2
Second level
3.33 m x 3.77 m
Bedroom 3
Second level
3.74 m x 3.77 m
Primary Bedroom
Basement
3.68 m x 3.51 m
Laundry room
Basement
4.79 m x 3.62 m
Recreational, Games room
Basement
2.79 m x 3.62 m
Living room
Main level
5.22 m x 3.61 m
Dining room
Main level
3.04 m x 3.62 m
Kitchen
Main level
2.56 m x 5.61 m

Location

Community Spotlight: Homes For sale in Your Neighborhood