Th G05 - 40 Fort York Boulevard, Toronto, Ontario M5V 3Z3

Listed for:
$1,299,000
3 beds
3 baths
Listed 37 days ago
Row / Townhouse for rent: Th G05 - 40 Fort York Boulevard, Toronto, Ontario M5V 3Z3

View all 11 photos

Learn more about this property
Listing provided by:
ROYAL LEPAGE YOUR COMMUNITY REALTY
MLS® number:
C12570938
Agent:
Taylor Sykes
*Indicates required field
Name is required
Email is required
Please enter a valid phone number (e.g., 416-111-1111).

About

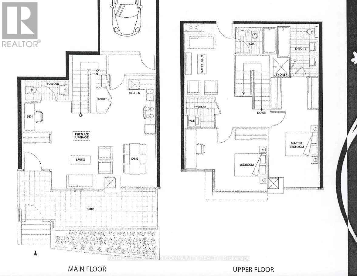
Fort York/Spadina A fully converted commercial condominium town home at 40 Fort York Blvd presents a standout opportunity in the heart of City Place...One of Toronto's fastest-growing and most walkable neighbourhoods. Perfect for investors, business owners who are seeking a live/work space, and those interested in obtaining an asset in a highly desirable neighbourhood with a walk score of 96/100, this two storey unit, offers endless possibilities for buyers.10.5 Ft Ceilings On Main Floor & 9Ft On 2nd Floor. 1535 sf + 198 Sf Patio, Total Area Is 1733Sf (As Per Builder's Plan.) Great South Exposure For Business and Organic Foot-Traffic. (id:27476)

Property Highlights

MLS® Number
C12570938
Type
Single Family
Community Name
Waterfront Communities C1
Maintenance Fee
1267.27
Ownership Type
Condominium/Strata
Parking Space Total
1

Building

Building Type
Row / Townhouse
Storeys
2.00
Square Footage
1400 - 1599 sqft
Bathrooms Total
3
Bedrooms Above Ground
2
Bedrooms Total
3
Amenities
Storage - Locker
Exterior Finish
Aluminum siding
Fireplace Present
No
Basement Type
None
Basement Features
Building Heating Type
Forced air
Heating Fuel
Electric
Building Cooling Type
Central air conditioning

Location

Street Spotlight - For sale