726 - 35 Parliament Street, Toronto, Ontario M5A 0Z5

Listed for:
$3,100
2 beds
2 baths
Listed 36 days ago
Apartment for rent: 726 - 35 Parliament Street, Toronto, Ontario M5A 0Z5

View all 18 photos

Learn more about this property
Listing provided by:
HOMELIFE NEW WORLD REALTY INC.
MLS® number:
C12577406
Agent:
Dennis He
*Indicates required field
Name is required
Email is required
Please enter a valid phone number (e.g., 416-111-1111).

About

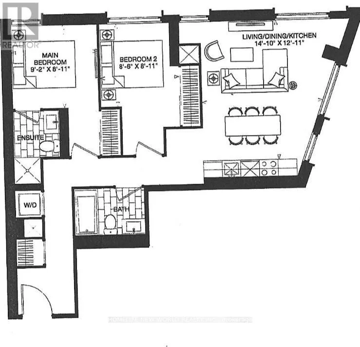
Parliament/Lakeshore Blvd Brand-New 2 Bedroom unit!! 793 sq ft per builder's floor plan, North-West Corner Unit!! Nestled in the historic Distillery District, The Goode offers residents a unique blend of historic charm and modern convenience. This bright and spacious unit offers one of the best layouts in the building, featuring floor-to-ceiling windows, Modern Open Concept kitchen. The intelligently designed floor plan offers functionality, making it perfect for both everyday living and entertaining. TTC at the door front, and walking distance to Distillery District, St Lawrence Market and Toronto Waterfront and more! (id:27476)

Property Highlights

MLS® Number
C12577406
Type
Single Family
Community Name
Waterfront Communities C8
Ownership Type
Condominium/Strata

Building

Building Type
Apartment
Square Footage
700 - 799 sqft
Bathrooms Total
2
Bedrooms Above Ground
2
Bedrooms Total
2
Amenities
Security/Concierge, Exercise Centre, Party Room Park, Place of Worship, Public Transit
Exterior Finish
Brick Facing, Concrete
Fireplace Present
No
Basement Type
None
Basement Features
Building Heating Type
Other
Heating Fuel
Building Cooling Type
Central air conditioning

Location

Street Spotlight - For rent