404 - 1101 Pharmacy Avenue, Toronto, Ontario M1R 2H2

Listed for:
$449,900
2 beds
2 baths
Listed 90 days ago
Apartment for rent: 404 - 1101 Pharmacy Avenue, Toronto, Ontario M1R 2H2

View all 40 photos

About

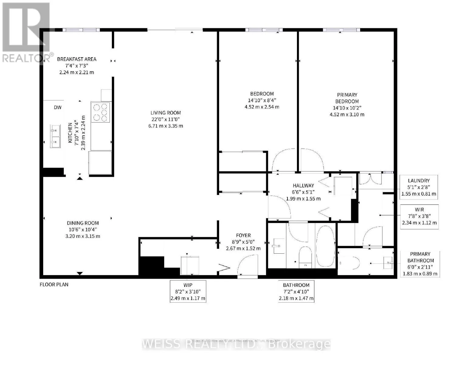
Pharmacy/Lawrence Large 2 Bdrm open concept living/dining area with eat-in kitchen and en-suite laundry. Filled with natural light and oversized master bedroom with walk in closet and ensuite. Quiet well-maintained building with great amenities. Underground parking space and locker included. Location, Location!!! Steps to schools, parks, shopping and TTC. Must be seen!!! (id:27476)

Property Highlights

MLS® Number
E12594096
Type
Single Family
Community Name
Wexford-Maryvale
Maintenance Fee
858.00
Ownership Type
Condominium/Strata
Parking Space Total
1

Building

Building Type
Apartment
Square Footage
900 - 999 sqft
Bathrooms Total
2
Bedrooms Above Ground
2
Bedrooms Total
2
Amenities
Exercise Centre, Party Room, Sauna, Visitor Parking, Storage - Locker
Exterior Finish
Brick
Fireplace Present
No
Basement Type
None
Basement Features
Building Heating Type
Baseboard heaters
Heating Fuel
Other
Building Cooling Type
Window air conditioner

Location

Learn more about this property
Listing provided by:
WEISS REALTY LTD.
MLS® number:
E12594096
Agent:
Salvatore (sal) Lunetta
*Indicates required field
Name is required
Email is required
Please enter a valid phone number (e.g., 416-111-1111).

Street Spotlight - For sale