Ph07 - 102 Bloor Street W, Toronto, Ontario M5S 1M8

Listed for:
$1,588,000
2 beds
3 baths
Listed 29 days ago
Apartment for rent: Ph07 - 102 Bloor Street W, Toronto, Ontario M5S 1M8

View all 47 photos

Learn more about this property
Listing provided by:
SUTTON GROUP - SUMMIT REALTY INC.
MLS® number:
C12595020
Agent:
Mooney Ferris
*Indicates required field
Name is required
Email is required
Please enter a valid phone number (e.g., 416-111-1111).

About

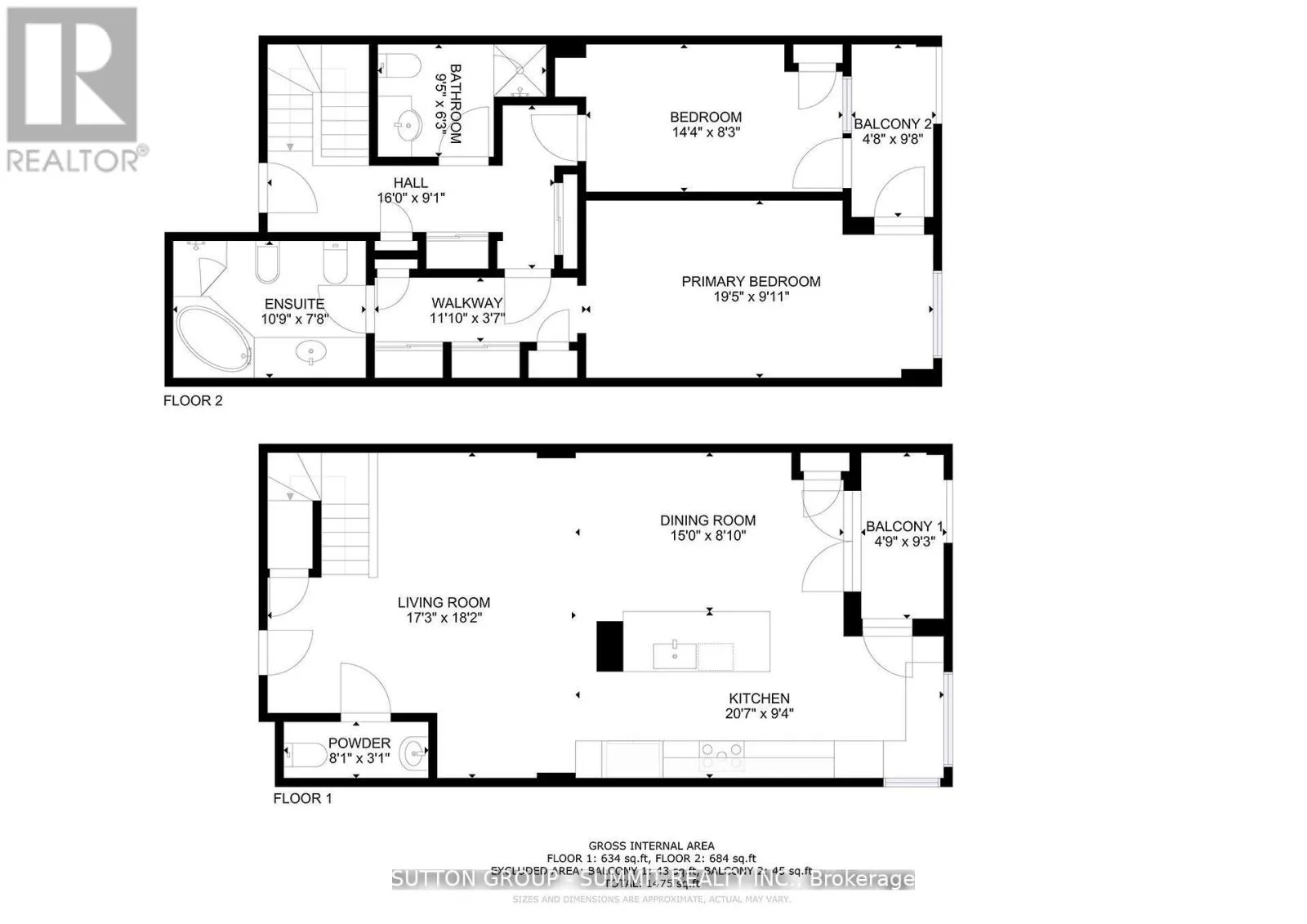
Bloor / Belair Welcome to 102 Bloor Street West, a landmark address in the heart of Yorkville offering history, sophistication, and modern living. Originally an office tower, this boutique building was reimagined into luxury residences in 1997 and remains one of Torontos most desirable addresses.This rare two-storey penthouse, Unit PH07, is part of only seven unique suites in the building. With expansive layouts and oversized windows, it offers an elegant backdrop for both entertaining and everyday living. The main floor has been newly renovated with herringbone-pattern hardwood flooring, adding warmth and sophistication. A custom Italian kitchen with quartz counter tops complements the space, while concrete walls between penthouse units ensure exceptional sound proofing and privacy. PH07 alsoincludes one parking space, two large lockers, and two private balconies a rare combination in Yorkville.Located directly on Bloor Streets famed Mink Mile, residents are surrounded by world-class shopping, fine dining, and cultural destinations. Chanel, Hermes, and Michelin-starred restaurants are steps away, while Bay Station and the TTC place the entire city within easy reach. Life at 102 Bloor Street West is elevated by access to the exclusive Bellair Cluba rooftop lounge with two multi-level terraces boasting sweeping views of Yorkville, the skyline, and the CN Tower. The building also offers a 24-hour concierge, fully equipped fitness centre, and saunas, delivering comfort and convenience in a boutique setting.With a Walk Score of 100 and a Transit Score of 99, this location epitomizes prestige and practicality. Penthouse living here is more than a homeit is a statement in one of Torontos most iconic neighborhoods. (id:27476)

Property Highlights

MLS® Number
C12595020
Type
Single Family
Community Name
Annex
Maintenance Fee
1733.52
Ownership Type
Condominium/Strata
Parking Space Total
1

Building

Building Type
Apartment
Storeys
2.00
Square Footage
1400 - 1599 sqft
Bathrooms Total
3
Bedrooms Above Ground
2
Bedrooms Total
2
Amenities
Recreation Centre, Exercise Centre, Sauna, Party Room, Security/Concierge, Storage - Locker Park, Public Transit, Schools
Exterior Finish
Brick
Fireplace Present
No
Basement Type
None
Basement Features
Building Heating Type
Forced air
Heating Fuel
Natural gas
Building Cooling Type
Central air conditioning

Location

Street Spotlight - For sale