28 Turtle Island Road, Toronto, Ontario M6A 2M5

Listed for:
$859,000
3 beds
3 baths
Listed 24 days ago
Row / Townhouse for rent: 28 Turtle Island Road, Toronto, Ontario M6A 2M5

View all 29 photos

Learn more about this property
Listing provided by:
CENTURY 21 ATRIA REALTY INC.
MLS® number:
C12608124
Agent:
Andi Duong
*Indicates required field
Name is required
Email is required
Please enter a valid phone number (e.g., 416-111-1111).

About

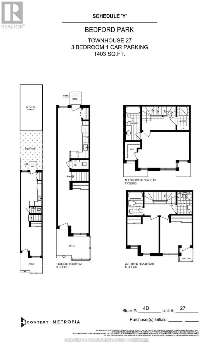
Cross Streets: ALLEN DR N AND LAWRENCE AVE W. ** Directions: West on Ranee Ave from Bathurst. Left on to Turtle Island. Property on North side. Welcome to the New Lawrence Heights! This 3 bedroom 3 bathroom townhouse was recently completed and is the perfect place to call home. It features a main floor kitchen to easily off load groceries, a large primary bedroom with ensuite bath and a walk-in closet and your own private back yard. Conveniently located steps away from TTC, minutes away from Allen Rd and the 401 giving you quick access to Yorkdale Shopping Centre and the rest of the City. Property Tax not yet assessed. (id:27476)

Property Highlights

MLS® Number
C12608124
Type
Single Family
Community Name
Englemount-Lawrence
Maintenance Fee
199.95
Ownership Type
Condominium/Strata
Parking Space Total
1

Building

Building Type
Row / Townhouse
Storeys
3.00
Square Footage
1400 - 1599 sqft
Bathrooms Total
3
Bedrooms Above Ground
3
Bedrooms Total
3
Exterior Finish
Brick
Fireplace Present
No
Basement Type
None
Basement Features
Building Heating Type
Forced air
Heating Fuel
Natural gas
Building Cooling Type
Central air conditioning

Location