1550 Eglinton Avenue W, Toronto, Ontario M6E 2G8

Listed for:
$4,900
0 beds
0 baths
Listed 83 days ago
1550 Eglinton Avenue W, Toronto, Ontario M6E 2G8

View all 5 photos

About

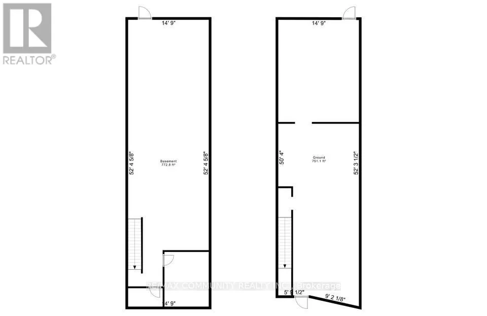
Eglinton/Allen Expressway Exceptional opportunity in one of Toronto's highest-traffic corridors, just steps from the brand-new Oakwood LRT station, Allen Road, and surrounded by multiple newly built residential developments. The unit comes equipped with a newly installed 8-foot commercial hood and tank less water heater. A spacious basement prep area provides excellent storage or additional kitchen capacity, while the rear lane way offers convenient receiving access and dedicated personal parking. (id:27476)

Property Highlights

MLS® Number
W12627200
Type
Retail
Community Name
Briar Hill-Belgravia
Land Size
Bldg=16 x 94 FT
Parking Space Total
2

Building

Square Footage
1520 sqft
Fireplace Present
No
Basement Type
Basement Features
Building Heating Type
Radiator
Heating Fuel
Building Cooling Type
Fully air conditioned

Utilities

Water
Municipal water

Location

Learn more about this property
Listing provided by:
RE/MAX COMMUNITY REALTY INC.
MLS® number:
W12627200
Agent:
Yossi Lallouz
*Indicates required field
Name is required
Email is required
Please enter a valid phone number (e.g., 416-111-1111).

Street Spotlight - For lease