462 Northcliffe Boulevard, Toronto, Ontario M6E 3L2

Listed for:
$2,667,077
0 beds
0 baths
Listed 17 days ago
Multi-Family for rent: 462 Northcliffe Boulevard, Toronto, Ontario M6E 3L2

View all 3 photos

Learn more about this property
Listing provided by:
SOTHEBY'S INTERNATIONAL REALTY CANADA
MLS® number:
C12632764
Agent:
Daniel Kim
*Indicates required field
Name is required
Email is required
Please enter a valid phone number (e.g., 416-111-1111).

About

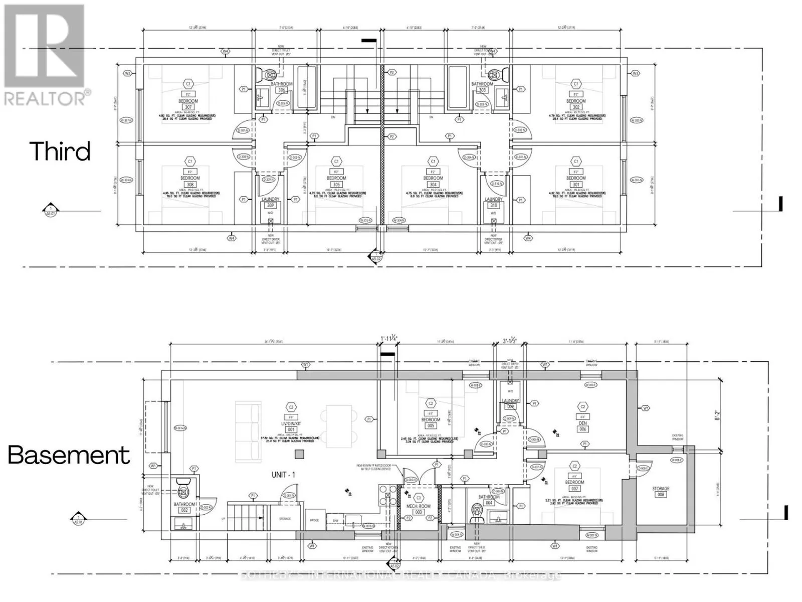
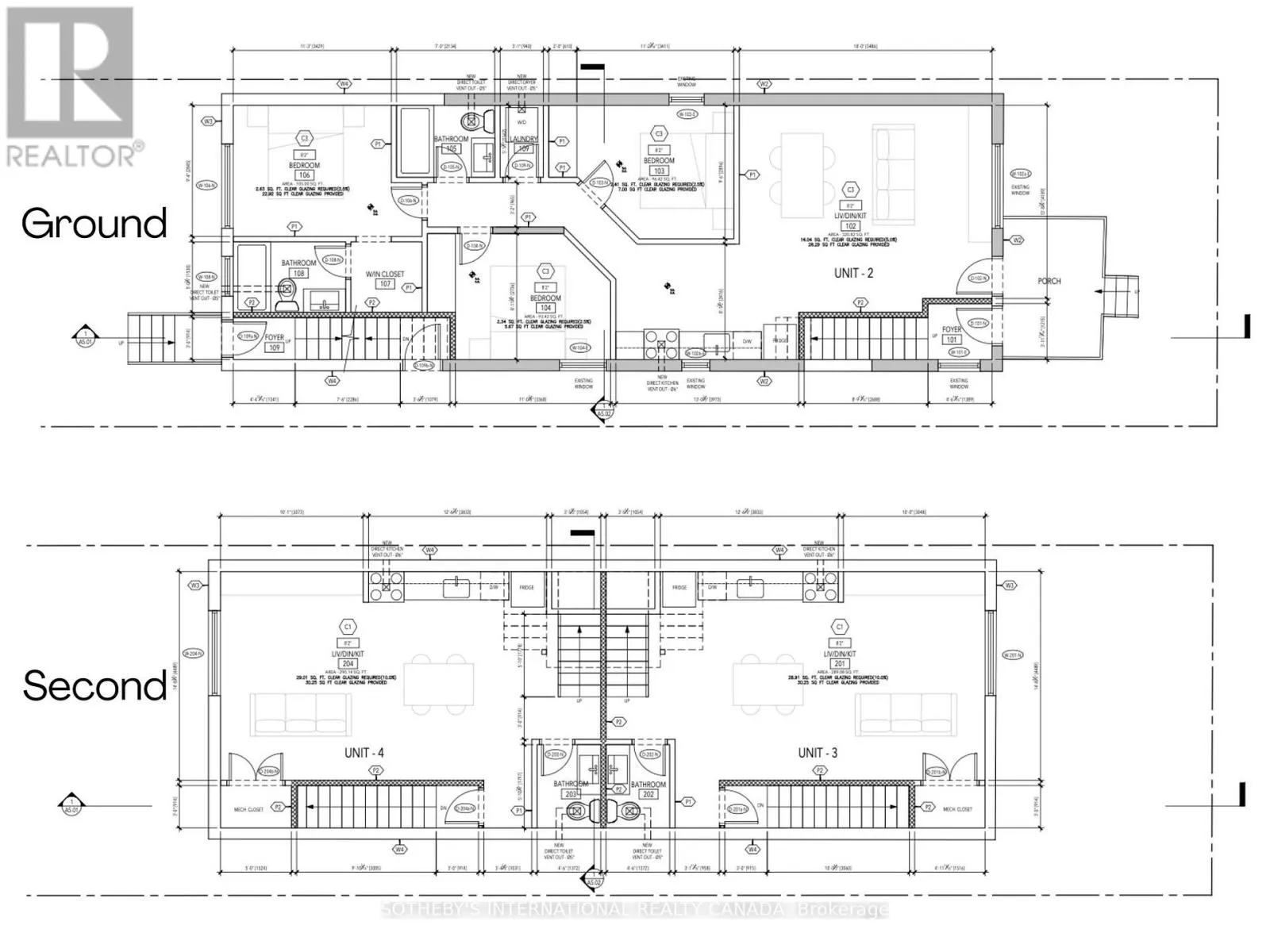
Cross Streets: Dufferin and Rogers. ** Directions: Follow your GPS. Pre-construction purpose-built rental redevelopment opportunity at 462 Northcliffe Blvd. The property is proposed as a three-storey multi-unit residential building with a self-contained rear garden suite, offered as a fixed-price construction project pursuant to the builder's construction agreement. Architectural drawings and renderings are available for review. The proposed design contemplates a comprehensive rebuild and vertical expansion, including new residential accommodation across multiple storeys and a separate garden suite located at the rear of the lot. The layouts emphasize efficient unit design, individual kitchens and bathrooms, and modern building standards, as illustrated in the architectural plans. The project has been designed with energy efficiency and CMHC MLI Select underwriting considerations in mind, which may provide a potential pathway to insured take-out financing upon stabilization, subject to CMHC program criteria, scoring, debt service coverage, and lender approval. No representation or warranty is made regarding CMHC eligibility, financing terms, or loan-to-value outcomes. Located in an established Toronto neighbourhood with proximity to transit, schools, parks, and local amenities. Intended for build-to-hold investors seeking long-term rental income and cost certainty through a pre-construction structure. Architectural drawings and additional information available upon request. Buyer to verify all permits, approvals, zoning compliance, construction scope, and financing eligibility. Appointment required before walking the site. (id:27476)

Property Highlights

MLS® Number
C12632764
Type
Multi-family
Community Name
Oakwood Village
Land Size
25 x 114.12 FT

Building

Building Type
Multi-Family
Fireplace Present
No
Basement Type
Basement Features
Building Heating Type
Forced air
Heating Fuel
Natural gas
Building Cooling Type
Fully air conditioned

Utilities

Water
Municipal water

Location