57 Westwood Avenue, Toronto, Ontario M4K 2A7

Listed for:
$3,535,723
0 beds
0 baths
Listed 17 days ago
Multi-Family for rent: 57 Westwood Avenue, Toronto, Ontario M4K 2A7

View all 3 photos

Learn more about this property
Listing provided by:
SOTHEBY'S INTERNATIONAL REALTY CANADA
MLS® number:
E12632770
Agent:
Daniel Kim
*Indicates required field
Name is required
Email is required
Please enter a valid phone number (e.g., 416-111-1111).

About

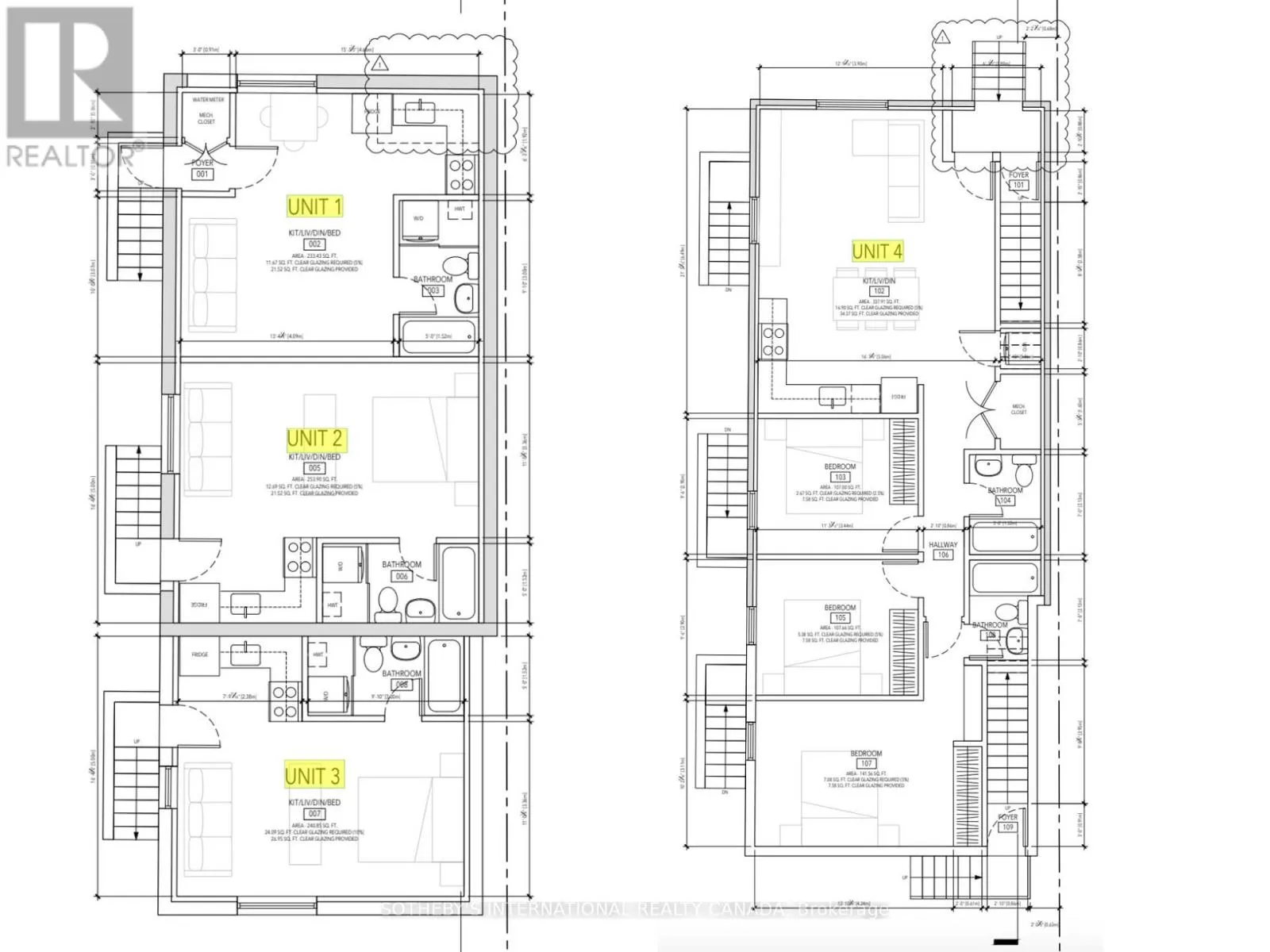
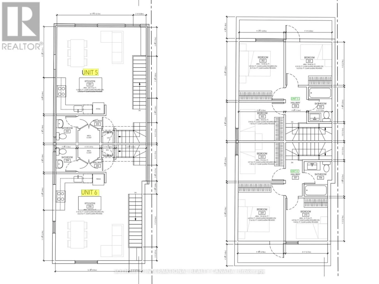
Cross Streets: Broadview/Mortimer. ** Directions: Follow your GPS. Pre-construction purpose-built rental development in East York. 57 Westwood Ave is a fully designed seven-plex (six-unit detached multiplex with a self-contained rear garden suite), offered as a fixed-price construction opportunity conditional on the builder obtaining Development Permit and Building Permit approval. The proposed building consists of a three storey plus basement configuration with a mix of studio and larger residential units, together with a separate two-bedroom garden suite located at the rear of the property. The project has been designed with energy-efficient construction and CMHC MLI Select underwriting considerations in mind, providing a potential pathway to insured take-out financing upon stabilization, subject to CMHC program requirements, scoring, debt service coverage, and lender approval. No representation or warranty is made regarding CMHC eligibility or financing terms. Located in a well-established East York neighbourhood with strong rental fundamentals, proximity to transit, parks, schools, and local amenities. Intended for build-to-hold investors seeking long-term rental income and cost certainty through a fixed-price construction structure. Architectural drawings and additional information available upon request. Buyer to verify all permits, approvals, zoning compliance, construction terms, and financing eligibility. Appointment required before walking the site. (id:27476)

Property Highlights

MLS® Number
E12632770
Type
Multi-family
Community Name
Broadview North
Land Size
30 x 110 FT

Building

Building Type
Multi-Family
Fireplace Present
No
Basement Type
Basement Features
Building Heating Type
Forced air
Heating Fuel
Natural gas
Building Cooling Type
Fully air conditioned

Utilities

Water
Municipal water

Location