Ph14 - 993 Queen Street W, Toronto, Ontario M6J 1H2

Listed for:
$8,900
2 beds
2 baths
Listed 62 days ago
Ph14 - 993 Queen Street W, Toronto, Ontario M6J 1H2

View all 33 photos

About

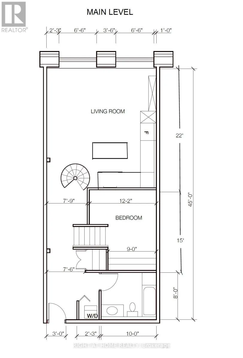
Cross Streets: Queen/Shaw. ** Directions: Queen West. CANDY FACTORY LOFT FULLY FURNISHED 2 BEDROOM PENTHOUSE $8900/month. Candy Factory Penthouse Loft in the Heart of Queen West. FULLY RENOVATED and BEAUTIFULLY FURNISHED. Two Storey Space, two Bedrooms with Custom Closets, two New Bathrooms. Large Designer Kitchen with Island. New High End Appliances and Wine Fridge. Washer/Dryer. Tons Of Storage with Crawl Space. 1400 Sq Ft Of True Loft Living. An Incredibly Unique Property W/ Soaring 13 Ft Ceilings & Exposed Wooden Beams. 400 Sq Ft North Facing TERRACE Overlooking Trinity Bellwoods Park. Elevator Access to Both Levels. Guest Suite, Parking Spot & Guest Parking, Gym, Party Room, Car Wash and 24 Hour Concierge. Short or Long Term Rental AVAILABLE IMMEDIATELY (id:27476)

Property Highlights

MLS® Number
C12635460
Type
Single Family
Community Name
Niagara
Maintenance Fee
0.00
Ownership Type
Condominium/Strata
Parking Space Total
1

Building

Square Footage
1400 - 1599 sqft
Bathrooms Total
2
Bedrooms Above Ground
2
Bedrooms Total
2
Amenities
Security/Concierge Public Transit
Exterior Finish
Brick Facing
Fireplace Present
No
Basement Type
None
Basement Features
Building Heating Type
Forced air
Heating Fuel
Electric
Building Cooling Type
Central air conditioning

Location

Learn more about this property
Listing provided by:
RIGHT AT HOME REALTY
MLS® number:
C12635460
Agent:
Sarah Anne Nichols
*Indicates required field
Name is required
Email is required
Please enter a valid phone number (e.g., 416-111-1111).

Street Spotlight - For rent