C - 52 Stanley Terrace, Toronto, Ontario M6J 2R4

Listed for:
$1,895
1 beds
1 baths
Listed 61 days ago
House for rent: C - 52 Stanley Terrace, Toronto, Ontario M6J 2R4

View all 17 photos

About

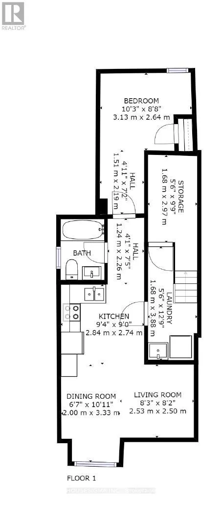
King St W. & Strachan Ave Furnished Victorian semi in an impeccable location, facing a park. Don't miss this gorgeously renovated 1-bedroom basement in King West. The bedroom flooring has been newly replaced and painted. Quietly nestled across from a park and just a 15-minute walk to the lake. Bright, open-concept layout with multiple windows, pot lights, laminate flooring, and stainless steel appliances. Lowest ceiling point just over 7 ft. Minutes to restaurants, shops, and parks. Heat, water, and high speed internet included. Unit will be professionally cleaned prior to move-in. Lease terms under one year available. (id:27476)

Property Highlights

MLS® Number
C12639222
Type
Single Family
Community Name
Niagara
Ownership Type
Freehold

Building

Building Type
House
Storeys
3.00
Square Footage
1500 - 2000 sqft
Bathrooms Total
1
Bedrooms Above Ground
1
Bedrooms Total
1
Amenities
Park
Exterior Finish
Brick
Fireplace Present
No
Basement Type
N/A (Finished)
Basement Features
Building Heating Type
Forced air
Heating Fuel
Natural gas
Building Cooling Type
Central air conditioning

Utilities

Water
Municipal water
Utility Sewer
Sanitary sewer

Location

Learn more about this property
Listing provided by:
HOUSESIGMA INC.
MLS® number:
C12639222
Agent:
Chao-wa K. Lim
*Indicates required field
Name is required
Email is required
Please enter a valid phone number (e.g., 416-111-1111).