1012 - 87 Peter Street, Toronto, Ontario M5V 2G4

Listed for:
$2,500
2 beds
1 baths
Listed 9 days ago
Apartment for rent: 1012 - 87 Peter Street, Toronto, Ontario M5V 2G4

View all 14 photos

Learn more about this property
Listing provided by:
BAYTREE REAL ESTATE INC.
MLS® number:
C12646004
Agent:
Darrin Lucas Couroux
*Indicates required field
Name is required
Email is required
Please enter a valid phone number (e.g., 416-111-1111).

About

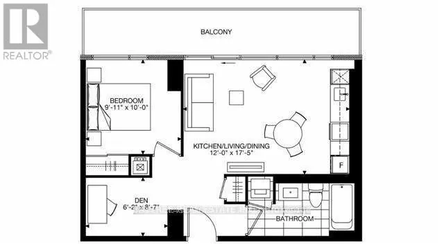
Peter St / Adelaide St W Hello, Central To Condos At 87 Peter St. Right In The Heart Of The Entertainment District (Peter & Adelaide), Enjoy This Freshly Condo Unit For All That It Has To Offer! *Quality Built By Menkes* *Hardwood Throughout* *Quartz Countertops* *Stainless Steel Appliances (Including Built-In Microwave)* *Cascading & Blackout Roller Shades* *Wi-Fi Enabled Thermostat* *Separate Den* *Full Length Balcony* (id:27476)

Property Highlights

MLS® Number
C12646004
Type
Single Family
Community Name
Waterfront Communities C1
Ownership Type
Condominium/Strata

Building

Building Type
Apartment
Square Footage
500 - 599 sqft
Bathrooms Total
1
Bedrooms Above Ground
1
Bedrooms Total
2
Amenities
Security/Concierge, Exercise Centre, Party Room
Exterior Finish
Concrete
Fireplace Present
Yes
Basement Type
None
Basement Features
Building Heating Type
Forced air
Heating Fuel
Natural gas
Building Cooling Type
Central air conditioning

Location

Street Spotlight - For rent