104 - 3400 Lake Shore Boulevard W, Toronto, Ontario M8W 4Z9

Listed for:
$599,000
0 beds
0 baths
Listed 54 days ago
Residential Commercial Mix for rent: 104 - 3400 Lake Shore Boulevard W, Toronto, Ontario M8W 4Z9

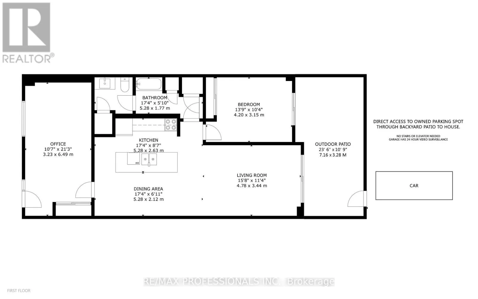
View all 36 photos

About

29th Street & Lake Shore Blvd W Welcome to the Lofts on 29th, a boutique 40 unit townhouse complex in the heart of Long Branch offering a rare ground floor suite with versatile live/work potential. This spacious 2 bedroom 1 bath home features a flexible front room that can serve as an office, studio or professional space with direct street access OR the seller is willing to enclose the space to provide a true second bedroom if preferred. The open concept kitchen features a large centre island, double sink and breakfast bar flowing seamlessly into the dining and living areas with laminate floors, pot lights and flat finished ceilings. A walkout leads to a private patio with exclusive direct entry into the underground parking garage and bike storage - a unique & convenient feature enjoyed by only a handful of units! Upgrades include California shutters and recently replaced windows and sliding doors. The primary bedroom is generous in size and the unit also includes ensuite laundry. Perfectly located in a vibrant and fast developing neighbourhood withTTC at your doorstep and close to Long Branch GO station, parks, the lake, restaurants, schools and easy access tohighways, this home offers the ideal blend of convenience, lifestyle and value in one of Toronto's most desirable lakeside communities. ** Seller is willing to enclose the front room to a 2nd bedroom upon request** (id:27476)

Property Highlights

MLS® Number
W12648748
Type
Retail
Community Name
Long Branch

Building

Building Type
Residential Commercial Mix
Square Footage
1056 sqft
Fireplace Present
No
Basement Type
Basement Features
Building Heating Type
Forced air
Heating Fuel
Natural gas
Building Cooling Type
Fully air conditioned

Utilities

Water
Municipal water

Location

Learn more about this property
Listing provided by:
RE/MAX PROFESSIONALS INC.
MLS® number:
W12648748
Agent:
Elizabeth Jane Johnson
*Indicates required field
Name is required
Email is required
Please enter a valid phone number (e.g., 416-111-1111).

Street Spotlight - For sale