Upper - 9 Blackstone Street, Toronto, Ontario M6L 0A3

Listed for:
$2,200
2 beds
2 baths
Listed 5 days ago
House for rent: Upper - 9 Blackstone Street, Toronto, Ontario M6L 0A3

View all 10 photos

Learn more about this property
Listing provided by:
MAIN STREET REALTY LTD.
MLS® number:
W12650332
Agent:
Vakeesan Thevanathan
*Indicates required field
Name is required
Email is required
Please enter a valid phone number (e.g., 416-111-1111).

About

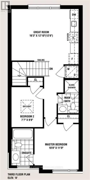
Black Creek Dr & Lawrence Ave Gorgeous Semi-Detached Residence Available for Rent in the Highly Desirable North York Area. This particular unit occupies the entirety of the third floor within this three-story semi-detached structure. Its proximity to Yorkdale Mall, public transportation, parks, schools, and more adds to its appeal. The interior boasts a splendid open-concept layout flooded with natural light, complemented by stunning hardwood flooring. 1 parking spot is included. Tenants are responsible for 50%of Utilities. (id:27476)

Property Highlights

MLS® Number
W12650332
Type
Single Family
Community Name
Brookhaven-Amesbury
Ownership Type
Freehold
Land Size
118.9 x 62.5 FT
Parking Space Total
1

Building

Building Type
House
Storeys
3.00
Square Footage
700 - 1100 sqft
Bathrooms Total
2
Bedrooms Above Ground
2
Bedrooms Total
2
Exterior Finish
Brick, Concrete Block
Fireplace Present
No
Basement Type
None
Basement Features
Building Heating Type
Forced air
Heating Fuel
Natural gas
Building Cooling Type
Central air conditioning

Utilities

Water
Municipal water
Utility Sewer
Sanitary sewer

Room Layout

Great room
Third level
4.95 m x 3.91 m
Bedroom
Third level
3.35 m x 3.25 m
Bedroom 2
Third level
2.95 m x 2.31 m

Location

Community Spotlight: Homes For rent in Your Neighborhood