1053 - 121 Lower Sherbourne Street, Toronto, Ontario M5A 0W8

Listed for:
$2,990
2 beds
2 baths
Listed 1 day ago
Apartment for rent: 1053 - 121 Lower Sherbourne Street, Toronto, Ontario M5A 0W8

View all 22 photos

Learn more about this property
Listing provided by:
BAYTREE REAL ESTATE INC.
MLS® number:
C12653536
Agent:
Hanmoui Lee
*Indicates required field
Name is required
Email is required
Please enter a valid phone number (e.g., 416-111-1111).

About

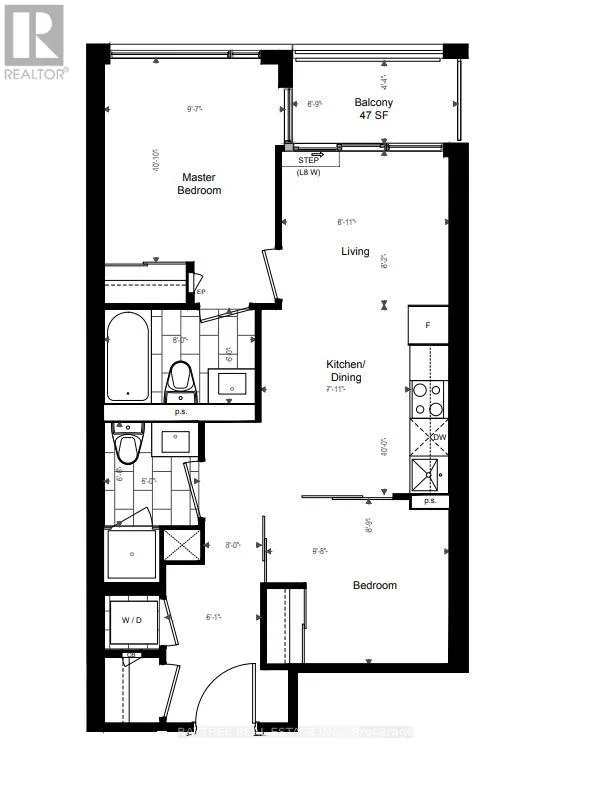
Cross Streets: Lower Sherbourne St & Front St E. ** Directions: TTC, Walk, Car. Welcome to Time & Space by Pemberton! This functional 2-bedroom, 2-bathroom suite offers a bright west-facing exposure with clear views of the downtown skyline. The smart split-bedroom layout, modern finishes, private balcony, and included parking and internet provide the perfect blend of comfort and convenience. Ideally located at Front St E & Lower Sherbourne St, you're just steps from the Distillery District, St. Lawrence Market, TTC, and an outstanding selection of downtown amenities. Enjoy resort-style building features such as an infinity pool, rooftop cabanas, fully equipped gym, yoga studio, BBQ area, party room, and more. A stylish, well-designed suite offering unbeatable downtown living - this is one you won't want to miss! (id:27476)

Property Highlights

MLS® Number
C12653536
Type
Single Family
Community Name
Waterfront Communities C8
Ownership Type
Condominium/Strata
Parking Space Total
1

Building

Building Type
Apartment
Square Footage
600 - 699 sqft
Bathrooms Total
2
Bedrooms Above Ground
2
Bedrooms Total
2
Amenities
Exercise Centre, Security/Concierge, Recreation Centre, Party Room Park, Hospital, Schools, Public Transit, Place of Worship
Exterior Finish
Concrete
Fireplace Present
No
Basement Type
None
Basement Features
Building Heating Type
Forced air
Heating Fuel
Natural gas
Building Cooling Type
Central air conditioning

Location

Street Spotlight - For rent