205 - 60 Princess Street, Toronto, Ontario M5A 2C7

Listed for:
$2,800
3 beds
2 baths
Listed 7 days ago
Apartment for rent: 205 - 60 Princess Street, Toronto, Ontario M5A 2C7

View all 28 photos

Learn more about this property
Listing provided by:
AVION REALTY INC.
MLS® number:
C12654476
Agent:
Lyndon Liu
*Indicates required field
Name is required
Email is required
Please enter a valid phone number (e.g., 416-111-1111).

About

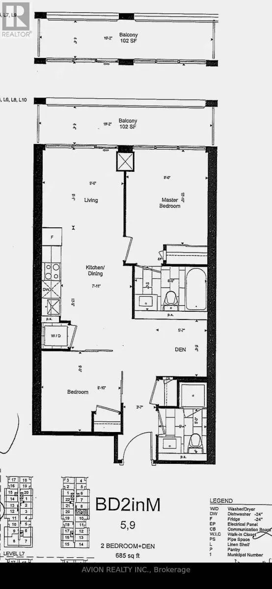
Front/ Princess Well-located in the heart of downtown Toronto, Time and Space Condos. High-speed internet building. Monden style, open concept. 2 bedrooms 2 Bathrooms, plus a Den can be the third bedroom. This unit offers a spacious layout and a perfect blend of style and functionality, 9 Ft Smooth Ceilings, Quartz Countertops, and premium laminate flooring, ideal for professionals and couples. Excess Of Amenities Including Infinity-edge Pool, Rooftop Cabanas, Outdoor Bbq Area, Games Room, Gym, Yoga Studio, Party Room And More! Steps to the Financial District, Union Station, St Lawrence Mkt & Waterfront, TTC, College, Grocery shop and more, very convenient. All furniture in the unit can be left or vacated. (id:27476)

Property Highlights

MLS® Number
C12654476
Type
Single Family
Community Name
Waterfront Communities C8
Ownership Type
Condominium/Strata

Building

Building Type
Apartment
Square Footage
600 - 699 sqft
Bathrooms Total
2
Bedrooms Above Ground
2
Bedrooms Total
3
Exterior Finish
Concrete
Fireplace Present
No
Basement Type
None
Basement Features
Building Heating Type
Forced air
Heating Fuel
Natural gas
Building Cooling Type
Central air conditioning

Location

Street Spotlight - For rent