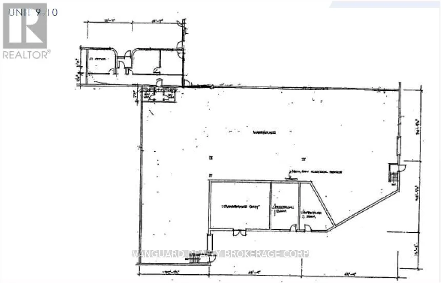
9-10 - 1111 Flint Road, Toronto, Ontario M3J 3C7

Listed for:
$18
0 beds
0 baths
Listed 59 days ago
Multi-Tenant Industrial for rent: 9-10 - 1111 Flint Road, Toronto, Ontario M3J 3C7

View all 4 photos

About

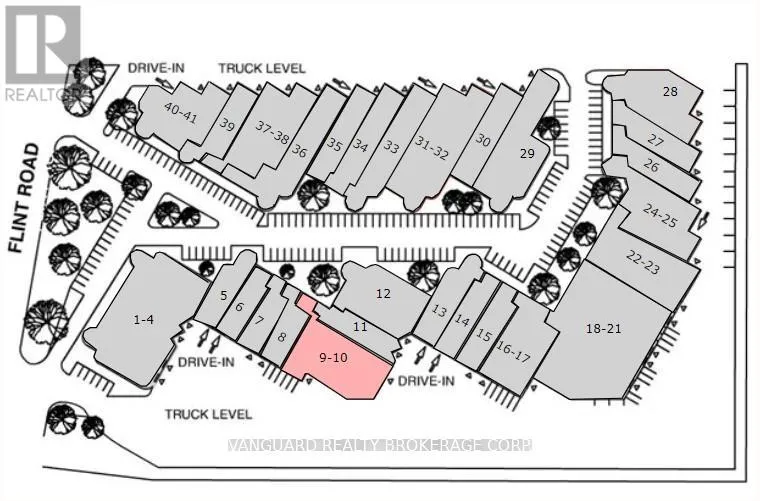
Cross Streets: Dufferin/Steeles. ** Directions: Finch to Alness, north to Flint. At the traffic light go west. Quality industrial storage space, total additional rent must include an administration fee of 5% of net rent ($0.95 per sq. foot) and must be added to current (2026) T.M.I of $3.79 psf per year to calculate total additional rent. **EXTRAS** 600V 3 phase at 400 Amps is the existing electrical service. (id:27476)

Property Highlights

MLS® Number
W12656842
Type
Industrial
Community Name
York University Heights

Building

Building Type
Multi-Tenant Industrial
Square Footage
8106 sqft
Fireplace Present
No
Basement Type
Basement Features
Building Heating Type
Forced air
Heating Fuel
Natural gas
Building Cooling Type
Partially air conditioned

Utilities

Water
Municipal water

Location

Learn more about this property
Listing provided by:
VANGUARD REALTY BROKERAGE CORP.
MLS® number:
W12656842
Agent:
Edib Softic
*Indicates required field
Name is required
Email is required
Please enter a valid phone number (e.g., 416-111-1111).

Street Spotlight - For lease