1120 - 330 Richmond Street W, Toronto, Ontario M5V 0M4

Listed for:
$2,699
2 beds
1 baths
Listed Today
Apartment for rent: 1120 - 330 Richmond Street W, Toronto, Ontario M5V 0M4

View all 16 photos

About

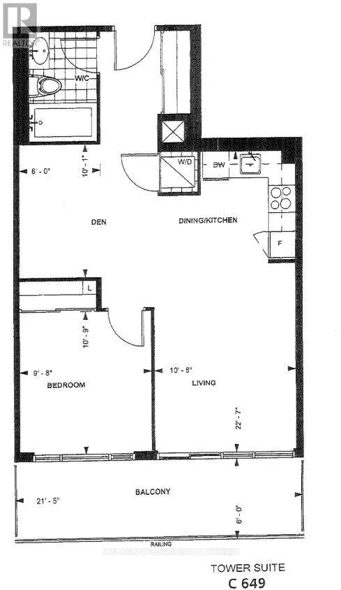
Richmond & John st Short or Long term furnished Luxurious New Condo Located In Trendy Queen West! Prof Designed & Filled W/ Custom Upgrades. Over 649 sqft plus 131sqft balcony and 9ft ceiling. Eat-In Kit W/Granite Counters & Under-Mount Sink. 5 Star Amenities:24 Hr Concierge, Rooftop Pool & Terrace, Games Rm, Fit. Studio. Theatre Room, King West Restaurants, Transit, Fin Core. Enjoy Breathtaking Views From Rooftop Pool/Terrace. Fully furnished (sofa, loveseat, TV, dining table with 4 chairs, queen bed, mattress, computer desk, computer chair, dishes & cutlery) (id:27476)

Property Highlights

MLS® Number
C12657022
Type
Single Family
Community Name
Waterfront Communities C1
Ownership Type
Condominium/Strata

Building

Building Type
Apartment
Square Footage
600 - 699 sqft
Bathrooms Total
1
Bedrooms Above Ground
1
Bedrooms Total
2
Amenities
Security/Concierge, Exercise Centre, Recreation Centre Public Transit
Exterior Finish
Concrete
Fireplace Present
No
Basement Type
None
Basement Features
Building Heating Type
Forced air
Heating Fuel
Natural gas
Building Cooling Type
Central air conditioning

Location

Learn more about this property
Listing provided by:
VALERY REAL ESTATE INC.
MLS® number:
C12657022
Agent:
Paul Ghafari
*Indicates required field
Name is required
Email is required
Please enter a valid phone number (e.g., 416-111-1111).

Street Spotlight - For rent