1905 - 158 Front Street E, Toronto, Ontario M5A 0K9

Listed for:
$2,900
2 beds
1 baths
Listed 2 days ago
Apartment for rent: 1905 - 158 Front Street E, Toronto, Ontario M5A 0K9

View all 30 photos

Learn more about this property
Listing provided by:
PROPERTY.CA INC.
MLS® number:
C12665366
Agent:
Julian Kashani
*Indicates required field
Name is required
Email is required
Please enter a valid phone number (e.g., 416-111-1111).

About

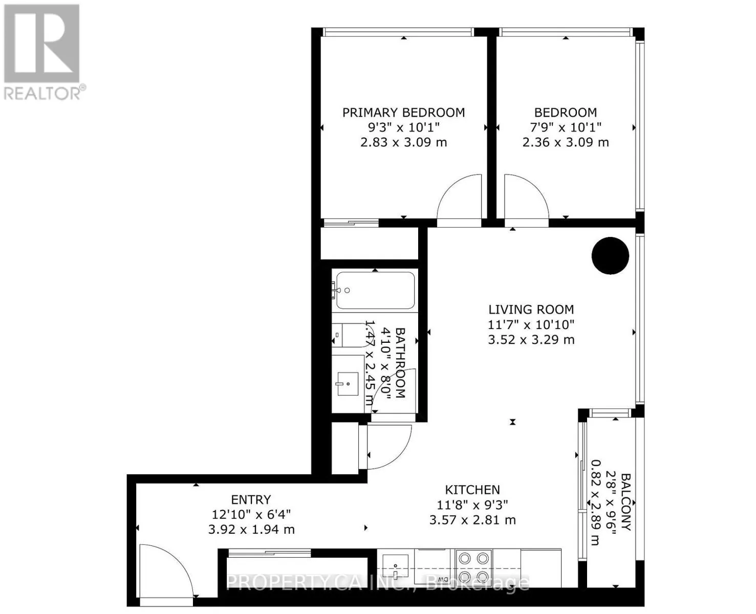
Front/Sherbourne Welcome to St. Lawrence Condos! Fabulous Corner unit with spectacular, postcard view of the City. This practical and spacious 2 Bedroom has ground-to-floor ceiling windows a balcony, and a locker. Located in the heart of one of downtown's most charming and walkable neighbourhoods. St. Lawrence Market, Distillery District, Sugar Beach, King Streetcar and Subway Station are just steps away!! (id:27476)

Property Highlights

MLS® Number
C12665366
Type
Single Family
Community Name
Moss Park
Ownership Type
Condominium/Strata

Building

Building Type
Apartment
Square Footage
600 - 699 sqft
Bathrooms Total
1
Bedrooms Above Ground
2
Bedrooms Total
2
Amenities
Recreation Centre, Exercise Centre, Party Room, Storage - Locker Public Transit
Exterior Finish
Brick
Fireplace Present
No
Basement Type
None
Basement Features
Building Heating Type
Forced air
Heating Fuel
Natural gas
Building Cooling Type
Central air conditioning

Location

Street Spotlight - For rent