Lower - 436 Concord Avenue, Toronto, Ontario M6H 2P8

Listed for:
$1,900
1 beds
1 baths
Listed 54 days ago
Other for rent: Lower - 436 Concord Avenue, Toronto, Ontario M6H 2P8

View all 20 photos

About

Cross Streets: Ossington Ave & Bloor St W. ** Directions: Ossington/Bloor/Concord. Newly renovated 1-bedroom, 1-bathroom lower unit just steps from Ossington Subway Station! This bright and modern suite features a separate private entrance, freshly painted interiors, brand-new flooring throughout, and new appliances, including an in-unit washer and dryer. Enjoy the convenience of city living with a short walk to Ossington Ave and Bloor St W, surrounded by top-rated restaurants, entertainment, Christie Pits, and Dovercourt Park. (id:27476)

Property Highlights

MLS® Number
W12671218
Type
Single Family
Community Name
Dovercourt-Wallace Emerson-Junction
Land Size
.

Building

Building Type
Other
Storeys
2.00
Square Footage
0 - 699 sqft
Bathrooms Total
1
Bedrooms Above Ground
1
Bedrooms Total
1
Exterior Finish
Brick
Fireplace Present
No
Basement Type
N/A, N/A (Finished)
Basement Features
Separate entrance
Building Heating Type
Forced air
Heating Fuel
Natural gas
Building Cooling Type
Central air conditioning

Utilities

Water
Municipal water
Utility Sewer
Sanitary sewer

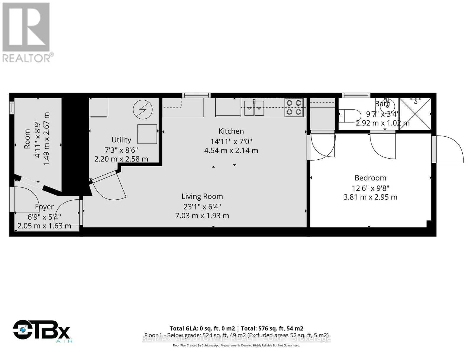
Room Layout

Bedroom
Lower level
3.81 m x 2.95 m
Kitchen
Lower level
4.54 m x 2.14 m
Living room
Lower level
7.03 m x 1.93 m
Foyer
Lower level
0.5 m x 4.19 m

Location

Learn more about this property
Listing provided by:
RE/MAX ABOUTOWNE REALTY CORP.
MLS® number:
W12671218
Agent:
Lauren Jamieson
*Indicates required field
Name is required
Email is required
Please enter a valid phone number (e.g., 416-111-1111).

Street Spotlight - For rent