918 - 12 Bonnycastle Street, Toronto, Ontario M5A 0C8

Listed for:
$3,600
3 beds
2 baths
Listed 1 day ago
Apartment for rent: 918 - 12 Bonnycastle Street, Toronto, Ontario M5A 0C8

View all 23 photos

Learn more about this property
Listing provided by:
HOMELIFE NEW WORLD REALTY INC.
MLS® number:
C12677076
Agent:
Tammy Lee
*Indicates required field
Name is required
Email is required
Please enter a valid phone number (e.g., 416-111-1111).

About

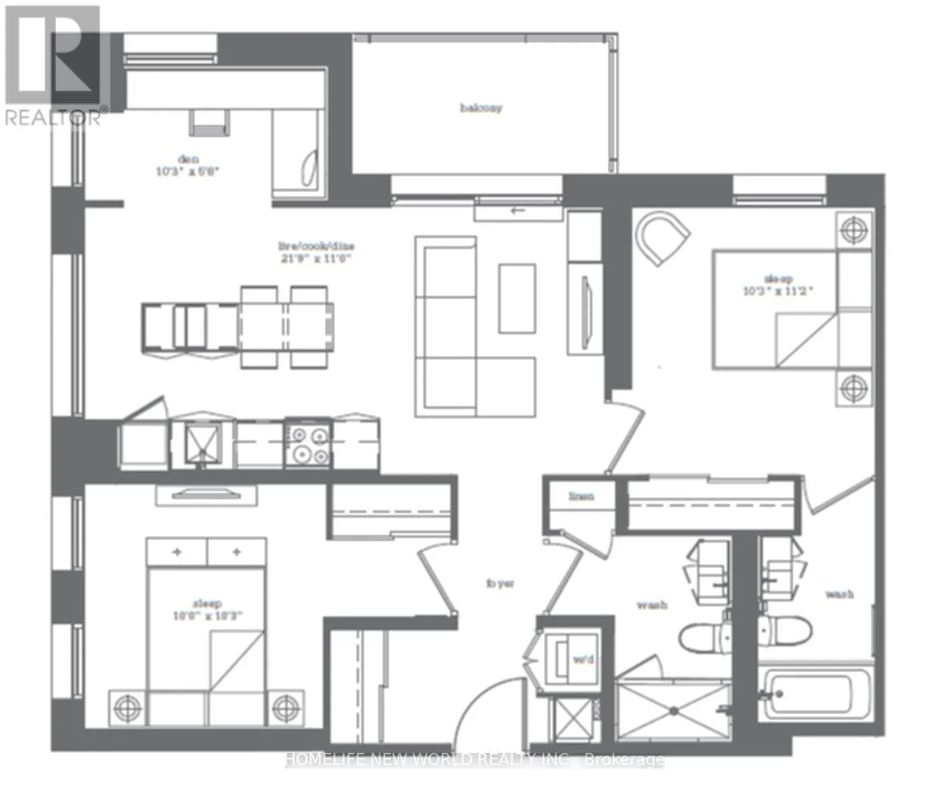
Cross Streets: Queens Quay E. & Lower Sherbourne st. ** Directions: North Side of Queens Quay E, West side of Bonnycastle St. Welcome to Monde by award-winning builder Great Gulf. The 912 sq. ft. corner unit features an excellent layout offering 2 bedrooms plus den and 2 full baths. Windows in every room bring in natural light and showcase southwest views of the lake and city. Large bedrooms feature generous closet space. Open-concept living and dining area with walkout to balcony. Kitchen includes an island with integrated dining space. ** Includes parking and storage locker **. Steps to the waterfront, Sugar Beach, George Brown College, Loblaws, Corus Entertainment, with easy access to Union Station, DVP, and Gardiner Expressway. (id:27476)

Property Highlights

MLS® Number
C12677076
Type
Single Family
Community Name
Waterfront Communities C8
Ownership Type
Condominium/Strata
Parking Space Total
1

Building

Building Type
Apartment
Square Footage
900 - 999 sqft
Bathrooms Total
2
Bedrooms Above Ground
2
Bedrooms Total
3
Amenities
Security/Concierge, Exercise Centre, Party Room, Visitor Parking, Separate Electricity Meters, Storage - Locker Beach, Park, Public Transit
Exterior Finish
Concrete
Fireplace Present
No
Basement Type
None
Basement Features
Building Heating Type
Forced air
Heating Fuel
Natural gas
Building Cooling Type
Central air conditioning

Location

Street Spotlight - For rent